お気に入りを解除しました。
BEARE本町BLDG.(旧Hommachi bldg)
物件番号:A111214
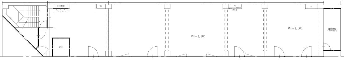
3階73.63坪
- この物件の賃料の価格帯(共益費込)
- 坪@15,001円~@20,000円
| 物件名 | BEARE本町BLDG.(旧Hommachi bldg) 【このビルのその他の募集階】 |
||
|---|---|---|---|
| 住所 | 大阪府大阪市中央区本町2丁目6番5号 本町・堺筋本町でよく検索されるその他の物件 |
||
| 構造(規模) | 鉄骨鉄造地上8階地下1階建 | ||
| 築年月 | 1989年3月 | ||
| 坪数 |
73.63坪 |
||
| 階数 | 3階 | ||
| 保証金 | |||
| 敷金 | 賃料の10カ月分 | ||
| 礼金 | - | ||
| 沿線 最寄駅 |
地下鉄御堂筋線 本町駅 徒歩5分 (本町駅の賃貸事務所) 地下鉄四つ橋線 本町駅 徒歩5分 (本町駅の賃貸事務所) 地下鉄堺筋線 堺筋本町駅 徒歩5分 (堺筋本町駅の賃貸事務所) |
||
| アクセス | 新大阪駅まで電車18分 大阪駅梅田駅まで電車12分 関西空港まで電車55分、車40分 伊丹空港まで車20分 高速入口:環状線信濃橋・阿波座 |
||
| EV基数 | 1基 | 人荷EV基数 | - |
| 空調タイプ | 個別 | ||
| 備考 | ・大通り沿い ・新耐震基準適合 ・空中店舗可能 |
||

本町通と三休橋筋に面す角地に位置している為、視認性の高い物件です。地下鉄各線『本町駅』『堺筋本町駅』から徒歩5分と、複数路線利用可能でアクセス至便な立地になります。エントランスから2階店舗区画へは直通のエスカレーターもあります。
- お電話でお問い合わせ(無料)
-
平日13時までのお問い合わせで
当日に物件をご紹介!
お電話の場合「物件番号:A111214」
をお伝えください
