お気に入りを解除しました。
淀屋橋サウス
物件番号:A105413
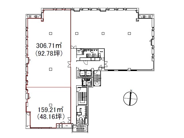
6階93.23坪

- この物件の賃料の価格帯(共益費込)
- この部屋は成約済みです
| 物件名 | 淀屋橋サウス 【このビルのその他の募集階】 |
||
|---|---|---|---|
| 住所 | 大阪府大阪市中央区道修町4丁目6番5号 淀屋橋・北浜でよく検索されるその他の物件 |
||
| 構造(規模) | 鉄骨鉄筋コンクリート造地上9階建 | ||
| 築年月 | 2009年2月1日 | ||
| 坪数 |
93.23坪 |
||
| 階数 | 6階 | ||
| 保証金 | - | ||
| 敷金 | - | ||
| 礼金 | - | ||
| 沿線 最寄駅 |
地下鉄御堂筋線 淀屋橋駅 徒歩4分 (淀屋橋駅の賃貸事務所) 地下鉄四つ橋線 肥後橋駅 徒歩5分 (肥後橋駅の賃貸事務所) 京阪線(本線・中之島線) 淀屋橋駅 徒歩8分 (淀屋橋駅の賃貸事務所) |
||
| アクセス | 新大阪駅まで電車13分 大阪駅梅田駅まで電車6分 関西空港まで電車53分、車47分 伊丹空港まで車20分 高速入口:環状線堂島入口 |
||
| EV基数 | 2基 | 人荷EV基数 | 1基 |
| 空調タイプ | 個別 | ||
| 備考 | ・角ビル・新耐震基準適合 ・エレベーター3基(人荷用エレベーター1基) ・天井高2.7m・駐輪場有り ・貸会議室有り |
||

淀屋橋サウスビルは、2009年築のハイクオリティオフィスビルで人間ドックや健康診断が行える大阪府結核予防会が同じ敷地内にあります。エントランスは照明使いがハイセンスでオフィスではめずらしいデザインになっています。また共用部も落ち着いた印象が感じられます。最寄り駅は御堂筋線の淀屋橋駅で、徒歩4分の立地に位置しています。
- お電話でお問い合わせ(無料)
-
平日13時までのお問い合わせで
当日に物件をご紹介!
お電話の場合「物件番号:A105413」
をお伝えください

