お気に入りを解除しました。
大阪平和
物件番号:A101110
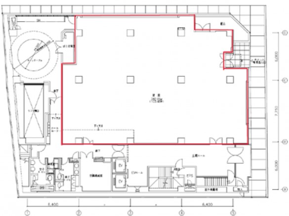
1階103.48坪

- この物件の賃料の価格帯(共益費込)
- 坪@12,001円~@15,000円
| 物件名 | 大阪平和 【このビルのその他の募集階】 |
||
|---|---|---|---|
| 住所 | 大阪府大阪市中央区北浜1丁目5番5号 淀屋橋・北浜でよく検索されるその他の物件 |
||
| 構造(規模) | 鉄骨鉄筋コンクリート造地上7階地下1階搭屋1階建 | ||
| 築年月 | 1987年4月1日 | ||
| 坪数 |
103.48坪 |
||
| 階数 | 1階 | ||
| 保証金 | |||
| 敷金 | 賃料の12カ月分 | ||
| 礼金 | - | ||
| 沿線 最寄駅 |
地下鉄堺筋線 北浜駅 徒歩1分 (北浜駅の賃貸事務所) 京阪線(本線・中之島線) 北浜駅 徒歩1分 (北浜駅の賃貸事務所) 地下鉄御堂筋線 淀屋橋駅 徒歩6分 (淀屋橋駅の賃貸事務所) |
||
| アクセス | 新大阪駅まで電車12分 大阪駅梅田駅まで電車7分 関西空港まで電車51分、車48分 伊丹空港まで車25分 高速入口:環状線高麗橋入口 |
||
| EV基数 | 2基 | 人荷EV基数 | - |
| 空調タイプ | 集中+個別 | ||
| 備考 | ・駅近・新耐震基準適合 ・角ビル・平成24年にエレベーター改修 ・全館LED照明化 |
||

大阪平和ビルは北浜駅徒歩1分で、大阪証券取引所ビルと同じオーナーが所有しており、大阪証券取引所ビルの南側に位置する物件です。金融関係の企業が多い北浜エリアに位置し、北浜駅からも近くで便利。公開空地が広い角ビルで重厚感があります。エントランスも広く、清掃が行き届いていますので清潔感があります。
- お電話でお問い合わせ(無料)
-
平日13時までのお問い合わせで
当日に物件をご紹介!
お電話の場合「物件番号:A101110」
をお伝えください

