お気に入りを解除しました。
堂島ビルヂング
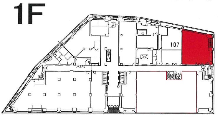
物件番号:C201209
1階44.55坪
- この物件の賃料の価格帯(共益費込)
- この部屋は成約済みです
| 物件名 | 堂島ビルヂング 【このビルのその他の募集階】 続きを表示 ▼ |
||
|---|---|---|---|
| 住所 | 大阪府大阪市北区西天満2丁目6番8号 梅田でよく検索されるその他の物件 |
||
| 構造(規模) | 鉄骨鉄筋コンクリート造地上9階地下1階建 | ||
| 築年月 | 1923年1月1日 | ||
| 坪数 |
44.55坪 |
||
| 階数 | 1階 | ||
| 保証金 | - | ||
| 敷金 | - | ||
| 礼金 | - | ||
| 沿線 最寄駅 |
地下鉄御堂筋線 淀屋橋駅 徒歩5分 (淀屋橋駅の賃貸事務所) 地下鉄谷町線 東梅田駅 徒歩10分 (東梅田駅の賃貸事務所) 京阪線(本線・中之島線) 大江橋駅 徒歩2分 (大江橋駅の賃貸事務所) |
||
| アクセス | 新大阪駅まで電車15分 大阪駅梅田駅まで電車9分 関西空港まで電車55分、車45分 伊丹空港まで車20分 高速入口:環状線南森町・堂島入口 |
||
| EV基数 | 3基 | 人荷EV基数 | 1基 |
| 空調タイプ | 個別 | ||
| 備考 | |||

大正12年築のアンティークビルの代表格。御堂筋沿いのシンボリックビル。
- お電話でお問い合わせ(無料)
-
平日13時までのお問い合わせで
当日に物件をご紹介!
お電話の場合「物件番号:C201209」
をお伝えください
