お気に入りを解除しました。
あびこ駅前(旧日本生命我孫子)
物件番号:N600701
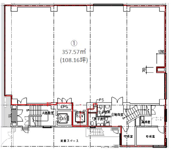
1階108.16坪
- この物件の賃料の価格帯(共益費込)
- この部屋は成約済みです
| 物件名 | あびこ駅前(旧日本生命我孫子) 【このビルのその他の募集階】 |
||
|---|---|---|---|
| 住所 | 大阪府大阪市住吉区苅田7丁目12番32号 でよく検索されるその他の物件 |
||
| 構造(規模) | 鉄筋コンクリート造地上4階建 | ||
| 築年月 | 1982年10月31日 | ||
| 坪数 |
108.16坪 |
||
| 階数 | 1階 | ||
| 保証金 | - | ||
| 敷金 | - | ||
| 礼金 | - | ||
| 沿線 最寄駅 |
地下鉄御堂筋線 |
||
| アクセス | 新大阪駅まで電車32分 大阪駅梅田駅まで電車28分 関西空港まで電車53分、車47分 伊丹空港まで車36分 高速入口:阪神高速14号松原線 |
||
| EV基数 | 2基 | 人荷EV基数 | - |
| 空調タイプ | 個別 | ||
| 備考 | ・駅近・大通り沿い | ||
- お電話でお問い合わせ(無料)
-
平日13時までのお問い合わせで
当日に物件をご紹介!
お電話の場合「物件番号:N600701」
をお伝えください

