お気に入りを解除しました。
心斎橋大陽
物件番号:A205355
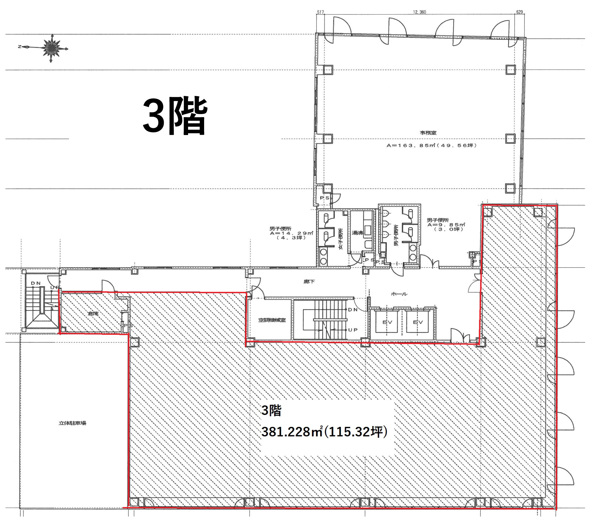
3階115.32坪

- この物件の賃料の価格帯(共益費込)
- 坪@12,001円~@15,000円
| 物件名 | 心斎橋大陽 【このビルのその他の募集階】 |
||
|---|---|---|---|
| 住所 | 大阪府大阪市中央区南船場3丁目11番10号 心斎橋・長堀橋でよく検索されるその他の物件 |
||
| 構造(規模) | 鉄骨鉄筋コンクリート造地上9階地下1階建 | ||
| 築年月 | 1989年4月1日 | ||
| 坪数 |
115.32坪 |
||
| 階数 | 3階 | ||
| 保証金 | |||
| 敷金 | 賃料の12カ月分 | ||
| 礼金 | - | ||
| 沿線 最寄駅 |
地下鉄御堂筋線 心斎橋駅 徒歩1分 (心斎橋駅の賃貸事務所) 地下鉄長堀鶴見緑地線 心斎橋駅 徒歩1分 (心斎橋駅の賃貸事務所) 地下鉄四つ橋線 四ツ橋駅 徒歩7分 (四ツ橋駅の賃貸事務所) |
||
| アクセス | 新大阪駅まで電車16分 大阪駅梅田駅まで電車10分 関西空港まで電車50分、車48分 伊丹空港まで車25分 高速入口:環状線信濃橋・阿波座 |
||
| EV基数 | 2基 | 人荷EV基数 | - |
| 空調タイプ | 集中 | ||
| 備考 | |||

御堂筋と心斎橋筋商店街の間に位置しており、黒色の重厚感ある外観が特徴的です。 エントランスには観葉植物が添えられており、白を基調とした清潔感ある内装と調和し、来訪者を癒やしてくれます。 空調はセントラル方式を採用。空調費は共益費に含まれる為、月々のランニングコストを削減する事が出来ます。
- お電話でお問い合わせ(無料)
-
平日13時までのお問い合わせで
当日に物件をご紹介!
お電話の場合「物件番号:A205355」
をお伝えください
