お気に入りを解除しました。
中央
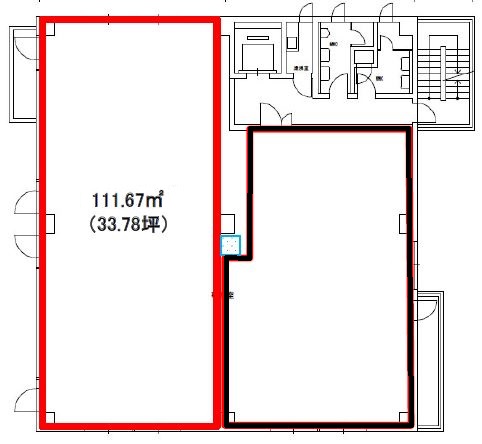
物件番号:H103200
2階33.78坪
- この物件の賃料の価格帯(共益費込)
- この部屋は成約済みです
| 物件名 | 中央 【このビルのその他の募集階】 |
||
|---|---|---|---|
| 住所 | 大阪府大阪市福島区野田2丁目12番4号 西梅田・堂島・福島でよく検索されるその他の物件 |
||
| 構造(規模) | 鉄筋コンクリート造地上5階建 | ||
| 築年月 | 1989年8月1日 | ||
| 坪数 |
33.78坪 |
||
| 階数 | 2階 | ||
| 保証金 | - | ||
| 敷金 | - | ||
| 礼金 | - | ||
| 沿線 最寄駅 |
地下鉄千日前線 玉川駅 徒歩7分 (玉川駅の賃貸事務所) JR大阪環状線 野田駅 徒歩8分 (野田駅の賃貸事務所) |
||
| アクセス | 新大阪駅まで電車20分 大阪駅梅田駅まで電車13分 関西空港まで電車66分、車45分 伊丹空港まで車20分 高速入口:福島・中之島西入口 |
||
| EV基数 | 1基 | 人荷EV基数 | - |
| 空調タイプ | 個別 | ||
| 備考 | |||
- お電話でお問い合わせ(無料)
-
平日13時までのお問い合わせで
当日に物件をご紹介!
お電話の場合「物件番号:H103200」
をお伝えください

