お気に入りを解除しました。
北浜NEXU BUILD
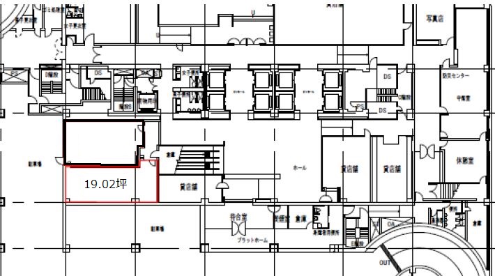
物件番号:A302024
地下1階19.02坪
- この物件の賃料の価格帯(共益費込)
- この部屋は成約済みです
| 物件名 | 北浜NEXU BUILD 【このビルのその他の募集階】 続きを表示 ▼ |
||
|---|---|---|---|
| 住所 | 大阪府大阪市中央区北浜東4番33号 淀屋橋・北浜・天満橋・谷町でよく検索されるその他の物件 |
||
| 構造(規模) | 鉄骨鉄骨鉄筋コンクリート造地上30階地下3階建 | ||
| 築年月 | 1973年1月1日 | ||
| 坪数 |
19.02坪 |
||
| 階数 | 地下1階 | ||
| 保証金 | - | ||
| 敷金 | - | ||
| 礼金 | - | ||
| 沿線 最寄駅 |
京阪線(本線・中之島線) 天満橋駅 徒歩5分 (天満橋駅の賃貸事務所) 地下鉄谷町線 天満橋駅 徒歩6分 (天満橋駅の賃貸事務所) 地下鉄堺筋線 北浜駅 徒歩6分 (北浜駅の賃貸事務所) |
||
| アクセス | 新大阪駅まで電車21分 大阪駅梅田駅まで電車15分 関西空港まで電車47分、車45分 伊丹空港まで車20分 高速入口:環状線高麗橋・南森町入口 |
||
| EV基数 | 9基 | 人荷EV基数 | - |
| 空調タイプ | 集中+個別 | ||
| 備考 | |||

大阪で最初に建設された高層ビルです。築年数はそこそこ経ちますが抜群の存在感と最高のグレード感。まさに昭和の名建築。
- お電話でお問い合わせ(無料)
-
平日13時までのお問い合わせで
当日に物件をご紹介!
お電話の場合「物件番号:A302024」
をお伝えください

