お気に入りを解除しました。
トーア紡第2
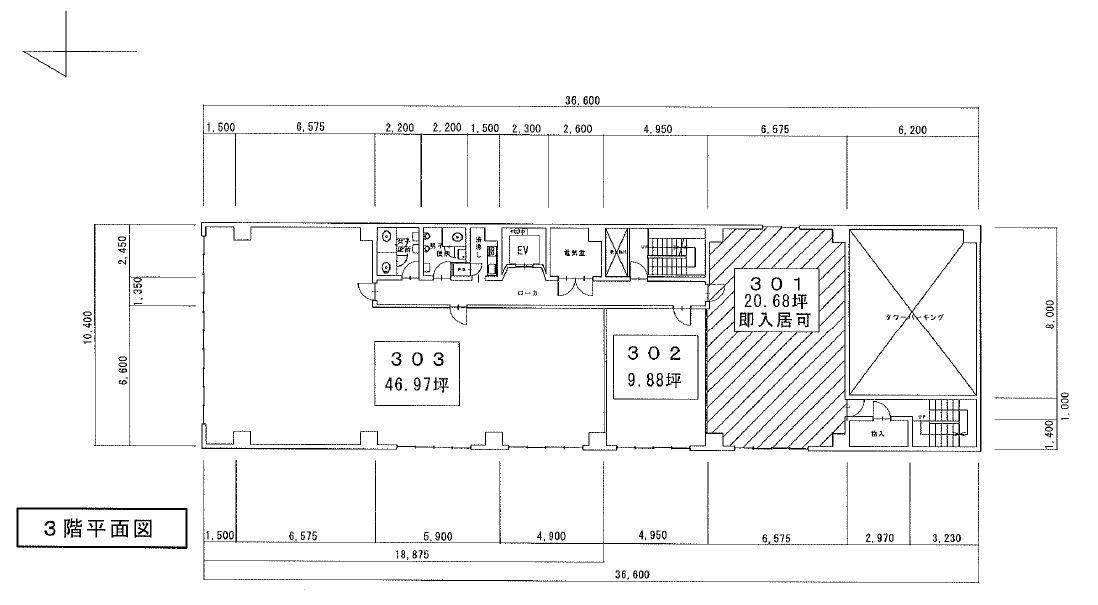
物件番号:A107307
3階20.68坪
- この物件の賃料の価格帯(共益費込)
- この部屋は成約済みです
| 物件名 | トーア紡第2 【このビルのその他の募集階】 |
||
|---|---|---|---|
| 住所 | 大阪府大阪市中央区淡路町3丁目2番8号 淀屋橋・北浜・本町・堺筋本町でよく検索されるその他の物件 |
||
| 構造(規模) | 鉄骨鉄筋コンクリート造地上9階地下1階建 | ||
| 築年月 | 1986年8月1日 | ||
| 坪数 |
20.68坪 |
||
| 階数 | 3階 | ||
| 保証金 | - | ||
| 敷金 | - | ||
| 礼金 | - | ||
| 沿線 最寄駅 |
地下鉄御堂筋線 本町駅 徒歩5分 (本町駅の賃貸事務所) 地下鉄御堂筋線 淀屋橋駅 徒歩6分 (淀屋橋駅の賃貸事務所) 地下鉄中央線 本町駅 徒歩7分 (本町駅の賃貸事務所) |
||
| アクセス | 新大阪駅まで電車15分 大阪駅梅田駅まで電車9分 関西空港まで電車56分、車53分 伊丹空港まで車26分 高速入口:環状線高麗橋・信濃橋入口 |
||
| EV基数 | 1基 | 人荷EV基数 | - |
| 空調タイプ | 個別 | ||
| 備考 | ・新耐震基準適合 ・管理人常駐 |
||

大阪メトロ御堂筋線「本町駅」徒歩5分の好立地ビル。管理人さんが常駐しているビルですので、管理も行き届いており、安心感があります。数段の階段を上がってからのエントランスも広めで清潔感があります。本町駅の他、御堂筋線の淀屋橋駅、堺筋線の北浜駅、堺筋本町駅、どの駅からもほぼ同じくらいの距離にあるため、必要に応じて沿線を選べるのも魅力です。
- お電話でお問い合わせ(無料)
-
平日13時までのお問い合わせで
当日に物件をご紹介!
お電話の場合「物件番号:A107307」
をお伝えください

