お気に入りを解除しました。
御堂筋MTR
物件番号:A107315
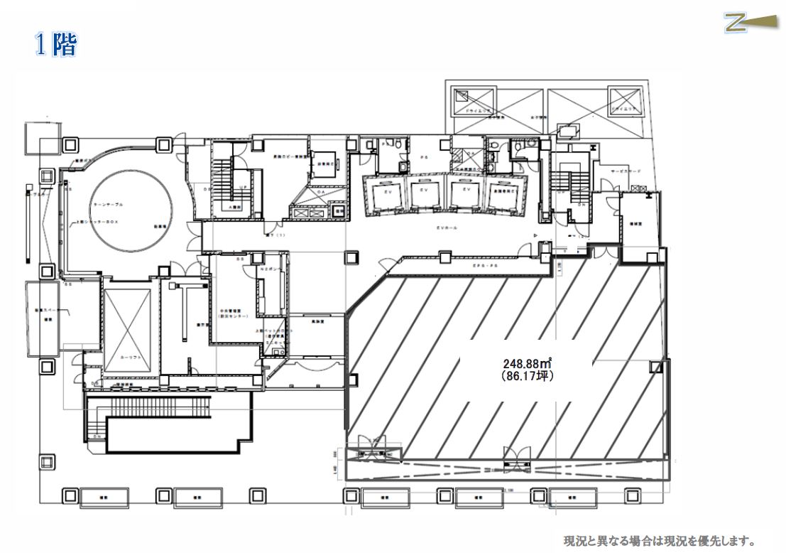
1階86.17坪
- この物件の賃料の価格帯(共益費込)
- この部屋は成約済みです
| 物件名 | 御堂筋MTR 【このビルのその他の募集階】 |
||
|---|---|---|---|
| 住所 | 大阪府大阪市中央区淡路町3丁目6番3号 淀屋橋・北浜・本町・堺筋本町でよく検索されるその他の物件 |
||
| 構造(規模) | 鉄骨・鉄骨鉄筋コンクリート造地上13階地下2階建 | ||
| 築年月 | 1999年3月1日 | ||
| 坪数 |
86.17坪 |
||
| 階数 | 1階 | ||
| 保証金 | - | ||
| 敷金 | - | ||
| 礼金 | - | ||
| 沿線 最寄駅 |
地下鉄御堂筋線 本町駅 徒歩3分 (本町駅の賃貸事務所) 地下鉄御堂筋線 淀屋橋駅 徒歩4分 (淀屋橋駅の賃貸事務所) 地下鉄中央線 本町駅 徒歩5分 (本町駅の賃貸事務所) |
||
| アクセス | 新大阪駅まで電車13分 大阪駅梅田駅まで電車7分 関西空港まで電車53分、車51分 伊丹空港まで車25分 高速入口:環状線堂島・信濃橋・阿波座 |
||
| EV基数 | 4基 | 人荷EV基数 | 1基 |
| 空調タイプ | 個別 | ||
| 備考 | ・大通り沿い・角ビル ・新耐震基準適合 ・エレベーター5基 ・天井高2.7m・駐輪場有り |
||

大阪のシンボルストリート「御堂筋」沿いに面した間口の広いインテリジェントビル。オフィスの基準階床面積は約250坪、最小で約40分坪の広さでの分割可能で、分割した場合でも御堂筋に面した区画を確保できます。1階にはおしゃれなカフェや地下にも飲食店が入っておりランチに困りません。
- お電話でお問い合わせ(無料)
-
平日13時までのお問い合わせで
当日に物件をご紹介!
お電話の場合「物件番号:A107315」
をお伝えください

