お気に入りを解除しました。
あいおいニッセイ同和損保御堂筋
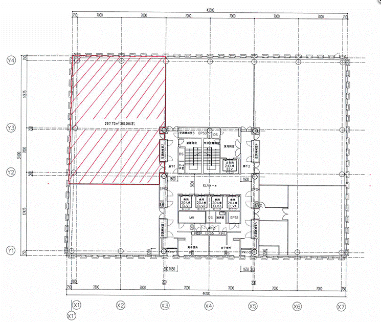
物件番号:A106319
6階90.06坪

- この物件の賃料の価格帯(共益費込)
- 坪@20,001円~@30,000円
| 物件名 | あいおいニッセイ同和損保御堂筋 【このビルのその他の募集階】 |
||
|---|---|---|---|
| 住所 | 大阪府大阪市中央区平野町3丁目6番1号 淀屋橋・北浜でよく検索されるその他の物件 |
||
| 構造(規模) | 鉄骨造・地下鉄筋コンクリート造地上11階地下2階建 | ||
| 築年月 | 2005年4月1日 | ||
| 坪数 |
90.06坪 |
||
| 階数 | 6階 | ||
| 保証金 | |||
| 敷金 | 賃料の12カ月分 | ||
| 礼金 | - | ||
| 沿線 最寄駅 |
地下鉄御堂筋線 淀屋橋駅 徒歩3分 (淀屋橋駅の賃貸事務所) 地下鉄御堂筋線 本町駅 徒歩4分 (本町駅の賃貸事務所) 京阪線(本線・中之島線) 淀屋橋駅 徒歩6分 (淀屋橋駅の賃貸事務所) |
||
| アクセス | 新大阪駅まで電車12分 大阪駅梅田駅まで電車6分 関西空港まで電車53分、車52分 伊丹空港まで車25分 高速入口:環状線高麗橋・信濃橋入口 |
||
| EV基数 | 4基 | 人荷EV基数 | - |
| 空調タイプ | 個別 | ||
| 備考 | ・大通り沿い・角ビル ・新耐震基準適合・天井高3m ・OAフロア100mm・エレベーター4基 ・2014年会議室、喫煙所、リフレッシュコーナーなど増設 ・駐輪場有り・1階にカフェ有り |
||

2005年築。御堂筋沿いの基準階325坪の大型ビル。ビルに平面駐車場と立体駐車場が併設され、2014年に貸会議室、喫煙所、リフレッシュルームが設置されたので立地だけではなく、設備面も満足して頂けると思います。また、貸室は天高3mと非常に高く、窓面も大きいので解放感があります。
- お電話でお問い合わせ(無料)
-
平日13時までのお問い合わせで
当日に物件をご紹介!
お電話の場合「物件番号:A106319」
をお伝えください
