お気に入りを解除しました。
EDGE江坂(旧ビーロット江坂)
物件番号:I106012
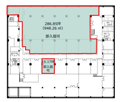
地下2階286.85坪

- この物件の賃料の価格帯(共益費込)
- この部屋は成約済みです
| 物件名 | EDGE江坂(旧ビーロット江坂) 【このビルのその他の募集階】 |
||
|---|---|---|---|
| 住所 | 大阪府吹田市豊津町9番1号 江坂・千里中央・箕面でよく検索されるその他の物件 |
||
| 構造(規模) | 鉄筋コンクリート・鉄骨鉄筋コンクリート造地上20階地下2階建 | ||
| 築年月 | 1975年2月1日 | ||
| 坪数 |
286.85坪 |
||
| 階数 | 地下2階 | ||
| 保証金 | - | ||
| 敷金 | - | ||
| 礼金 | - | ||
| 沿線 最寄駅 |
地下鉄御堂筋線 江坂駅 徒歩1分 (江坂駅の賃貸事務所) |
||
| アクセス | 新大阪駅まで電車7分 大阪駅梅田駅まで電車13分 関西空港まで電車65分、車55分 伊丹空港まで車13分 高速入口:豊中・豊中南入口 |
||
| EV基数 | 8基 | 人荷EV基数 | 1基 |
| 空調タイプ | 集中+個別 | ||
| 備考 | |||

江坂駅前の大型ランドマークオフィス。広々としたエントランスが開放感満載。上層階のロケーションは梅田方面まで見渡せるパノラマビューです。
- お電話でお問い合わせ(無料)
-
平日13時までのお問い合わせで
当日に物件をご紹介!
お電話の場合「物件番号:I106012」
をお伝えください

