お気に入りを解除しました。
中尾ロイヤル
物件番号:D201210
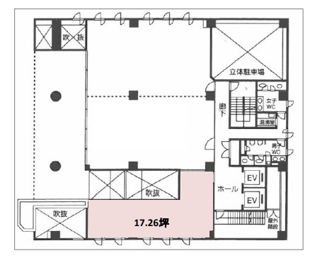
2階17.26坪

- この物件の賃料の価格帯(共益費込)
- この部屋は成約済みです
| 物件名 | 中尾ロイヤル 【このビルのその他の募集階】 |
||
|---|---|---|---|
| 住所 | 大阪府大阪市淀川区宮原2丁目14番10号 新大阪・西中島でよく検索されるその他の物件 |
||
| 構造(規模) | 鉄骨鉄筋コンクリート造一部鉄筋コンクリート造地上9階建 | ||
| 築年月 | 1986年1月1日 | ||
| 坪数 |
17.26坪 |
||
| 階数 | 2階 | ||
| 保証金 | - | ||
| 敷金 | - | ||
| 礼金 | - | ||
| 沿線 最寄駅 |
地下鉄御堂筋線 東三国駅 徒歩3分 (東三国駅の賃貸事務所) 地下鉄御堂筋線 新大阪駅 徒歩6分 (新大阪駅の賃貸事務所) JR東海道本線 新大阪駅 徒歩6分 (新大阪駅の賃貸事務所) |
||
| アクセス | 新大阪駅まで電車6分 大阪駅梅田駅まで電車8分 関西空港まで電車63分、車50分 伊丹空港まで車20分 高速入口:11号線加島入口 |
||
| EV基数 | 2基 | 人荷EV基数 | - |
| 空調タイプ | 個別 | ||
| 備考 | 重厚感のあるたたずまい。駐車場は平面と機械式立体があり、社用車のある企業様にも人気です。 基準階面積約112坪、17坪前後から分割対応可能です。 |
||

新大阪駅から徒歩圏内。新御堂筋沿いに建ち、上品なモダンテイストのファサードが印象的なオフィスビル。
ゆったりとしたエントランスがラグジュアリーなビジネスライフを演出します。
区画は約17坪からワンフロア112坪まで幅広く対応できます。また、立体駐車場だけでなく平面駐車場も併設しているため、ハイルーフ車を使用されるお客様にもおすすめです。
- お電話でお問い合わせ(無料)
-
平日13時までのお問い合わせで
当日に物件をご紹介!
お電話の場合「物件番号:D201210」
をお伝えください
