お気に入りを解除しました。
新大阪八千代ビル別館
物件番号:D201503
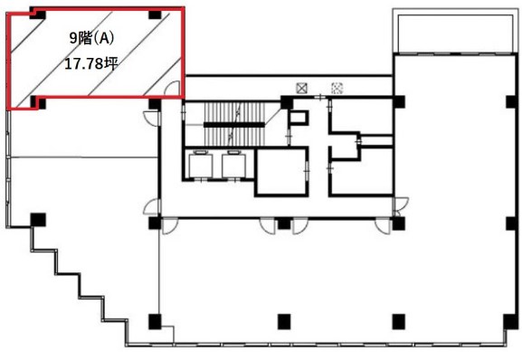
9階17.78坪

- この物件の賃料の価格帯(共益費込)
- 坪@12,001円~@15,000円
| 物件名 | 新大阪八千代ビル別館 【このビルのその他の募集階】 |
||
|---|---|---|---|
| 住所 | 大阪府大阪市淀川区宮原5丁目1番28号 新大阪・西中島でよく検索されるその他の物件 |
||
| 構造(規模) | 鉄骨鉄筋コンクリート造地上9階建 | ||
| 築年月 | 1988年1月1日 | ||
| 坪数 |
17.78坪 |
||
| 階数 | 9階 | ||
| 保証金 | 相談 | ||
| 敷金 | - | ||
| 礼金 | - | ||
| 沿線 最寄駅 |
地下鉄御堂筋線 新大阪駅 徒歩6分 (新大阪駅の賃貸事務所) 地下鉄御堂筋線 東三国駅 徒歩4分 (東三国駅の賃貸事務所) JR東海道本線 新大阪駅 徒歩6分 (新大阪駅の賃貸事務所) |
||
| アクセス | 新大阪駅まで電車6分 大阪駅梅田駅まで電車7分 関西空港まで電車63分、車50分 伊丹空港まで車20分 高速入口:11号線加島入口 |
||
| EV基数 | 2基 | 人荷EV基数 | - |
| 空調タイプ | 個別 | ||
| 備考 | 基準階面積約135坪の大型ビル。新御堂筋に面し、角のデザインが特徴的な美築ビル。 共用部のリニューアルも2004年に完了。明るく管理の行き届いた物件です。 |
||
10坪弱のサイズから135坪までのバリエーション豊富な貸室。
新大阪駅、東三国駅の2駅を利用可能。
- お電話でお問い合わせ(無料)
-
平日13時までのお問い合わせで
当日に物件をご紹介!
お電話の場合「物件番号:D201503」
をお伝えください
