お気に入りを解除しました。
西本町中央
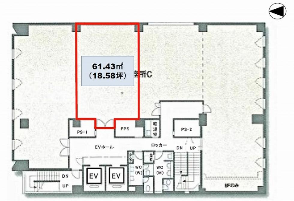
物件番号:B201129
10階18.58坪

- この物件の賃料の価格帯(共益費込)
- 坪@8,001円~@12,000円
| 物件名 | 西本町中央 【このビルのその他の募集階】 |
||
|---|---|---|---|
| 住所 | 大阪府大阪市西区阿波座1丁目13番13号 肥後橋・本町・阿波座でよく検索されるその他の物件 |
||
| 構造(規模) | 鉄骨鉄筋コンクリート造地上10階地下1階建 | ||
| 築年月 | 1989年7月1日 | ||
| 坪数 |
18.58坪 |
||
| 階数 | 10階 | ||
| 保証金 | |||
| 敷金 | 賃料の12カ月分 | ||
| 礼金 | - | ||
| 沿線 最寄駅 |
地下鉄四つ橋線 本町駅 徒歩3分 (本町駅の賃貸事務所) 地下鉄中央線 本町駅 徒歩4分 (本町駅の賃貸事務所) 地下鉄御堂筋線 本町駅 徒歩6分 (本町駅の賃貸事務所) |
||
| アクセス | 新大阪駅まで電車17分 大阪駅梅田駅まで電車11分 関西空港まで電車57分、車45分 伊丹空港まで車20分 高速入口:阪神高速環状線信濃橋・阿波座入口 |
||
| EV基数 | 2基 | 人荷EV基数 | - |
| 空調タイプ | 個別 | ||
| 備考 | ・大通り沿い・新耐震基準適合 ・1フロア1テナント・天井高2600mm ・駐輪場有り |
||

大阪メトロ四つ橋「本町駅」から徒歩4分の立地に位置する、中央大通り沿いのビルです。
基準階面積約100坪の大型ビルで、駐車場が完備されています。
どの部屋も天高が2.6mあるので解放感がありますが、北と南の貸室は採光が取れる貸室でこのビルの中でも人気が高いです。
貸室は100坪~16坪ぐらいまで様々ありますので、会社の規模が大きくなった場合でもビル内でも移転がしやすいです。
- お電話でお問い合わせ(無料)
-
平日13時までのお問い合わせで
当日に物件をご紹介!
お電話の場合「物件番号:B201129」
をお伝えください
