お気に入りを解除しました。
木村店舗
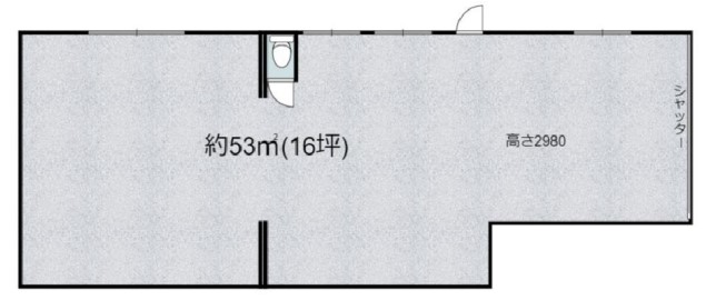
物件番号:B303103
1階16坪

- この物件の賃料の価格帯(共益費込)
- 坪@8,001円~@12,000円
| 物件名 | 木村店舗 【このビルのその他の募集階】 |
||
|---|---|---|---|
| 住所 | 大阪府大阪市西区九条1丁目21番3号 阿波座でよく検索されるその他の物件 |
||
| 構造(規模) | 鉄骨造地上4階建 | ||
| 築年月 | 不詳 | ||
| 坪数 |
16坪 |
||
| 階数 | 1階 | ||
| 保証金 | |||
| 敷金 | 賃料の1カ月分 | ||
| 礼金 | 賃料の2カ月分 | ||
| 沿線 最寄駅 |
地下鉄中央線 九条駅 徒歩3分 (九条駅の賃貸事務所) |
||
| アクセス | 新大阪駅まで電車30分 大阪駅梅田駅まで電車20分 関西空港まで電車65分、車36分 伊丹空港まで車18分 高速入口:阪神高速16号線 本田 |
||
| EV基数 | - | 人荷EV基数 | - |
| 空調タイプ | |||
| 備考 | |||
- お電話でお問い合わせ(無料)
-
平日13時までのお問い合わせで
当日に物件をご紹介!
お電話の場合「物件番号:B303103」
をお伝えください

