お気に入りを解除しました。
中央内本町
物件番号:A315208
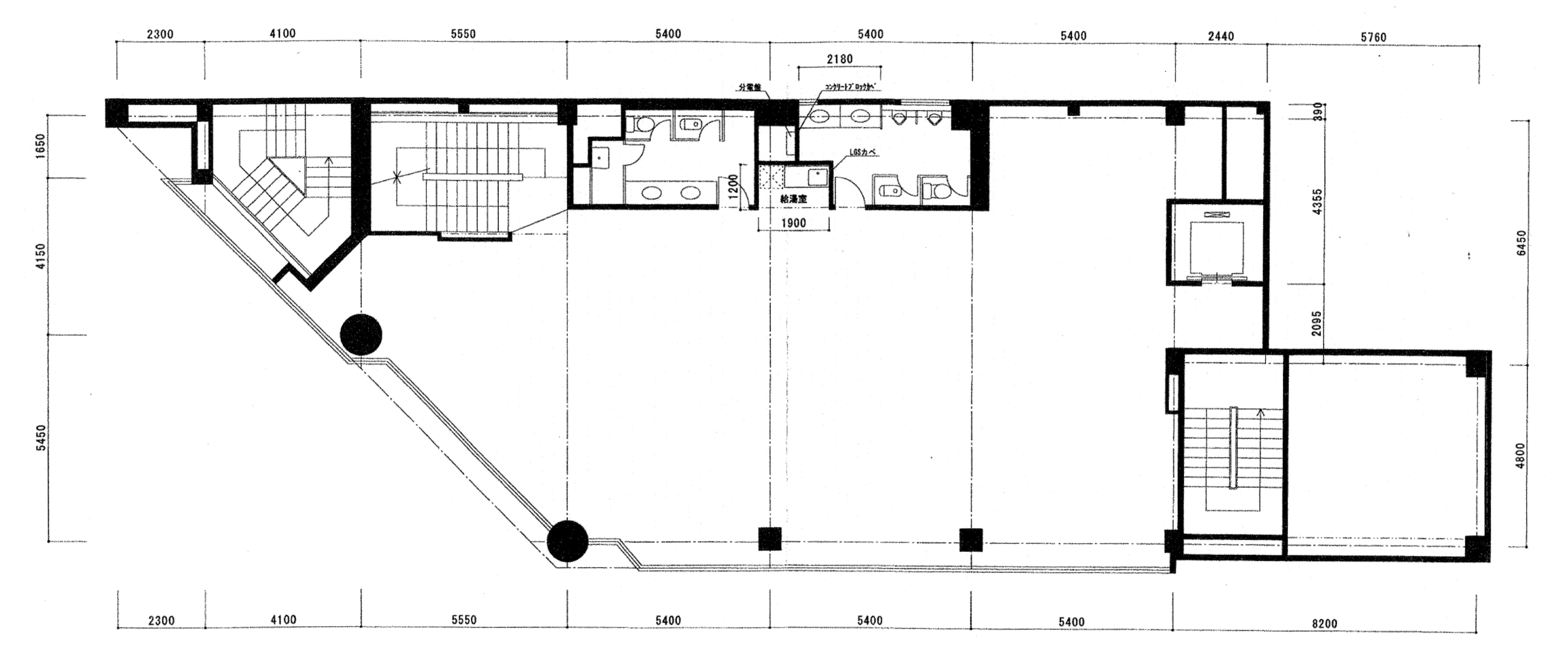
2階74.72坪

- この物件の賃料の価格帯(共益費込)
- この部屋は成約済みです
| 物件名 | 中央内本町 【このビルのその他の募集階】 |
||
|---|---|---|---|
| 住所 | 大阪府大阪市中央区内本町2丁目4番12号 本町・堺筋本町・天満橋・谷町でよく検索されるその他の物件 |
||
| 構造(規模) | 鉄骨造地上9階建 | ||
| 築年月 | 1983年8月4日 | ||
| 坪数 |
74.72坪 |
||
| 階数 | 2階 | ||
| 保証金 | - | ||
| 敷金 | - | ||
| 礼金 | - | ||
| 沿線 最寄駅 |
地下鉄谷町線 谷町四丁目駅 徒歩4分 (谷町四丁目駅の賃貸事務所) 地下鉄中央線 谷町四丁目駅 徒歩4分 (谷町四丁目駅の賃貸事務所) 地下鉄堺筋線 堺筋本町駅 徒歩7分 (堺筋本町駅の賃貸事務所) |
||
| アクセス | 新大阪駅まで電車19分 大阪駅梅田駅まで電車13分 関西空港まで電車58分、車45分 伊丹空港まで車20分 高速入口:環状線高麗橋・法円坂入口 |
||
| EV基数 | 1基 | 人荷EV基数 | - |
| 空調タイプ | 個別 | ||
| 備考 | |||

大阪メトロ谷町線、中央線「谷町四丁目駅」徒歩4分の立地に位置するビル。
大通りに面した角ビルなため、存在感があります。
ワンフロアー約74坪~80坪ほどのワンフロアーワンテナントか約30坪ほどの2テナントで貸出しています。
管理が行き届いたビルですので、入居した方に気持ちよく使って頂けます。
- お電話でお問い合わせ(無料)
-
平日13時までのお問い合わせで
当日に物件をご紹介!
お電話の場合「物件番号:A315208」
をお伝えください
