お気に入りを解除しました。
オーク心斎橋
物件番号:A205368
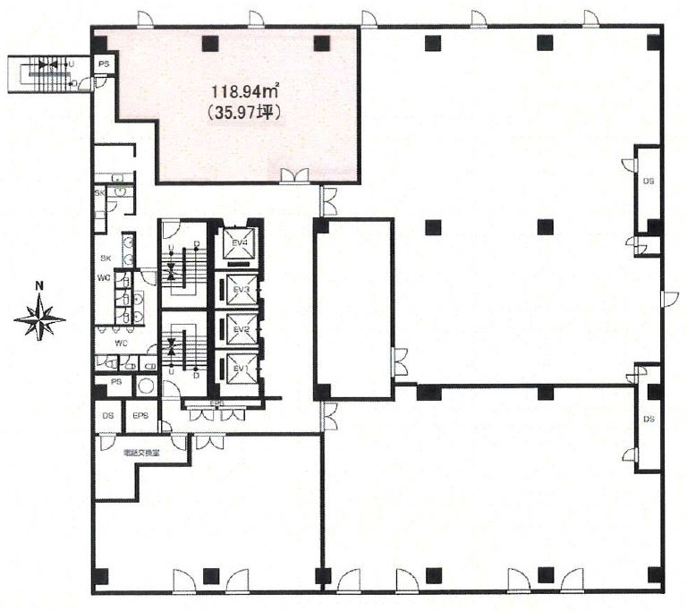
8階35.97坪
- この物件の賃料の価格帯(共益費込)
- この部屋は成約済みです
| 物件名 | オーク心斎橋 【このビルのその他の募集階】 |
||
|---|---|---|---|
| 住所 | 大阪府大阪市中央区南船場3丁目5番8号 心斎橋・長堀橋でよく検索されるその他の物件 |
||
| 構造(規模) | 鉄骨鉄筋コンクリート造地上10階地下2階建 | ||
| 築年月 | 1971年12月1日 | ||
| 坪数 |
35.97坪 |
||
| 階数 | 8階 | ||
| 保証金 | - | ||
| 敷金 | - | ||
| 礼金 | - | ||
| 沿線 最寄駅 |
地下鉄御堂筋線 心斎橋駅 徒歩2分 (心斎橋駅の賃貸事務所) 地下鉄長堀鶴見緑地線 心斎橋駅 徒歩2分 (心斎橋駅の賃貸事務所) 地下鉄堺筋線 長堀橋駅 徒歩5分 (長堀橋駅の賃貸事務所) |
||
| アクセス | 新大阪駅まで電車15分 大阪駅梅田駅まで電車9分 関西空港まで電車48分、車47分 伊丹空港まで車25分 高速入口:環状線 信濃橋・阿波座 入口 |
||
| EV基数 | 3基 | 人荷EV基数 | 1基 |
| 空調タイプ | 集中 | ||
| 備考 | |||

大阪メトロ御堂筋線「心斎橋駅」徒歩2分の立地に位置するビル。長堀通り沿いのビルです。1971年築のビルですが、2001年に共用部をリニューアルしていますので古さを感じないビルです。貸室は30坪~140坪までありますので、様々なニーズにお応えできます。
- お電話でお問い合わせ(無料)
-
平日13時までのお問い合わせで
当日に物件をご紹介!
お電話の場合「物件番号:A205368」
をお伝えください

