お気に入りを解除しました。
南船場M21
物件番号:A205141
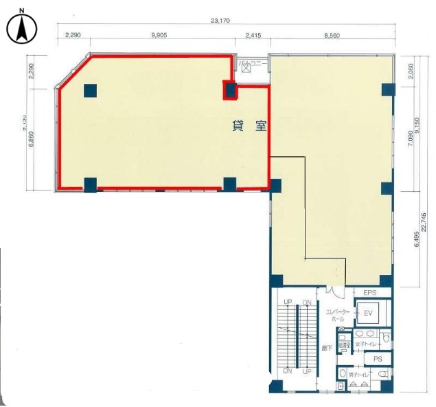
4階38.15坪

- この物件の賃料の価格帯(共益費込)
- 坪@15,001円~@20,000円
| 物件名 | 南船場M21 【このビルのその他の募集階】 |
||
|---|---|---|---|
| 住所 | 大阪府大阪市中央区南船場1丁目10番20号 心斎橋・長堀橋でよく検索されるその他の物件 |
||
| 構造(規模) | 鉄骨鉄筋コンクリート造地上9階地下1階建 | ||
| 築年月 | 2000年1月31日 | ||
| 坪数 |
38.15坪 |
||
| 階数 | 4階 | ||
| 保証金 | |||
| 敷金 | 賃料の12カ月分 | ||
| 礼金 | - | ||
| 沿線 最寄駅 |
地下鉄堺筋線 長堀橋駅 徒歩1分 (長堀橋駅の賃貸事務所) 地下鉄長堀鶴見緑地線 長堀橋駅 徒歩1分 (長堀橋駅の賃貸事務所) 地下鉄長堀鶴見緑地線 松屋町駅 徒歩7分 (松屋町駅の賃貸事務所) |
||
| アクセス | 新大阪駅まで電車15分 大阪駅梅田駅まで電車9分 関西空港まで電車50分、車45分 伊丹空港まで車20分 高速入口:環状線長堀入口 |
||
| EV基数 | 1基 | 人荷EV基数 | - |
| 空調タイプ | 個別 | ||
| 備考 | |||

落ち着いた周辺環境に位置する風格あるビル。石張りの外観と高級感あるエントランスが魅力的。また管理も行き届いており、オーナーの心遣いが嬉しいビルです。北面は高校の運動場になっているので採光も眺望も◎
- お電話でお問い合わせ(無料)
-
平日13時までのお問い合わせで
当日に物件をご紹介!
お電話の場合「物件番号:A205141」
をお伝えください
