お気に入りを解除しました。
東明
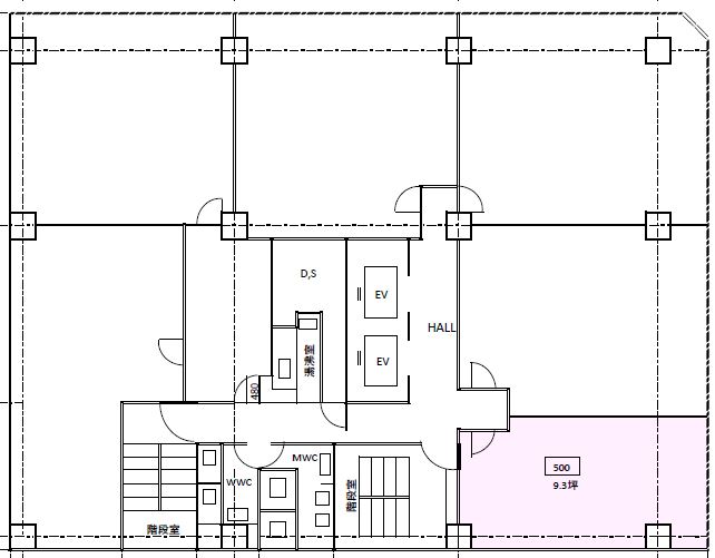
物件番号:A202403
5階9.3坪
- この物件の賃料の価格帯(共益費込)
- この部屋は成約済みです
| 物件名 | 東明 【このビルのその他の募集階】 |
||
|---|---|---|---|
| 住所 | 大阪府大阪市中央区北久宝寺町4丁目2番10号 本町・堺筋本町でよく検索されるその他の物件 |
||
| 構造(規模) | 鉄骨鉄筋コンクリート地上8階建 | ||
| 築年月 | 1971年1月1日 | ||
| 坪数 |
9.3坪 |
||
| 階数 | 5階 | ||
| 保証金 | - | ||
| 敷金 | - | ||
| 礼金 | - | ||
| 沿線 最寄駅 |
地下鉄御堂筋線 本町駅 徒歩3分 (本町駅の賃貸事務所) 地下鉄中央線 本町駅 徒歩3分 (本町駅の賃貸事務所) 地下鉄四つ橋線 本町駅 徒歩6分 (本町駅の賃貸事務所) |
||
| アクセス | 新大阪駅まで電車16分 大阪駅梅田駅まで電車10分 関西空港まで電車53分、車48分 伊丹空港まで車20分 高速入口:環状線信濃橋・阿波座・長堀 入口 |
||
| EV基数 | 2基 | 人荷EV基数 | - |
| 空調タイプ | 個別 | ||
| 備考 | |||

北御堂の南側の閑静ですが、地下鉄御堂筋線「本町駅」より徒歩3分と良い立地にあります。テナント専用の無料貸会議がありセミナー等される企業様におすすめです。東面のお部屋から北御堂の大屋根が見えます。又、オーナーが常駐しておりますので設備面のトラブル等も非常に対応が早く対応頂けます。
- お電話でお問い合わせ(無料)
-
平日13時までのお問い合わせで
当日に物件をご紹介!
お電話の場合「物件番号:A202403」
をお伝えください
