お気に入りを解除しました。
新御堂
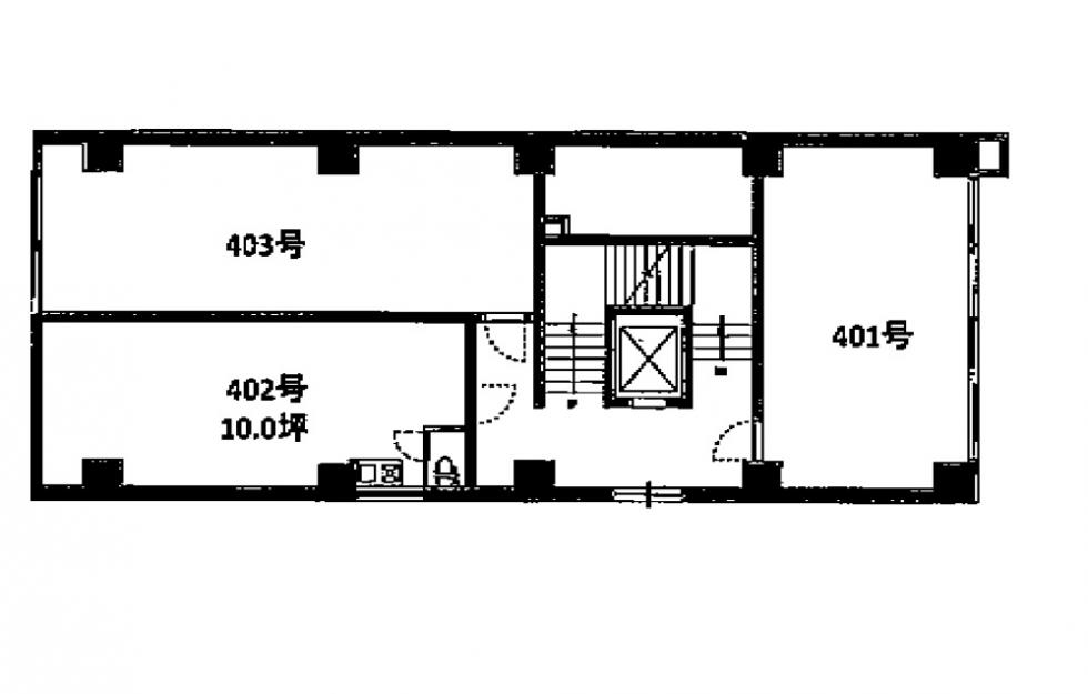
物件番号:A203406
4階10坪

- この物件の賃料の価格帯(共益費込)
- 坪@8,001円~@12,000円
| 物件名 | 新御堂 【このビルのその他の募集階】 |
||
|---|---|---|---|
| 住所 | 大阪府大阪市中央区南久宝寺町4丁目4番1号 本町・堺筋本町・心斎橋・長堀橋でよく検索されるその他の物件 |
||
| 構造(規模) | 鉄筋コンクリート造地上7階地下1階建 | ||
| 築年月 | 1960年 | ||
| 坪数 |
10坪 |
||
| 階数 | 4階 | ||
| 保証金 | |||
| 敷金 | - | ||
| 礼金 | 賃料の3カ月分 | ||
| 沿線 最寄駅 |
地下鉄御堂筋線 本町駅 徒歩4分 (本町駅の賃貸事務所) 地下鉄中央線 本町駅 徒歩4分 (本町駅の賃貸事務所) 地下鉄御堂筋線 心斎橋駅 徒歩6分 (心斎橋駅の賃貸事務所) |
||
| アクセス | 新大阪駅まで電車16分 大阪駅梅田駅まで電車10分 関西空港まで電車51分、車46分 伊丹空港まで車22分 高速入口:環状線信濃橋・阿波座・長堀 入口 |
||
| EV基数 | 1基 | 人荷EV基数 | - |
| 空調タイプ | 個別 | ||
| 備考 | |||

大阪メトロ御堂筋線「本町駅」徒歩4分の立地に位置するビル。1960年築でレトロな趣を残しつつ、共用部はリニューアルされてきれいになっています。御堂筋から一筋西に入った立地で、大通りには面していませんが通りからすぐの割に静かな環境です。ワンフロアー2テナントビルのコンパクトオフィス。
- お電話でお問い合わせ(無料)
-
平日13時までのお問い合わせで
当日に物件をご紹介!
お電話の場合「物件番号:A203406」
をお伝えください
