お気に入りを解除しました。
南星本館
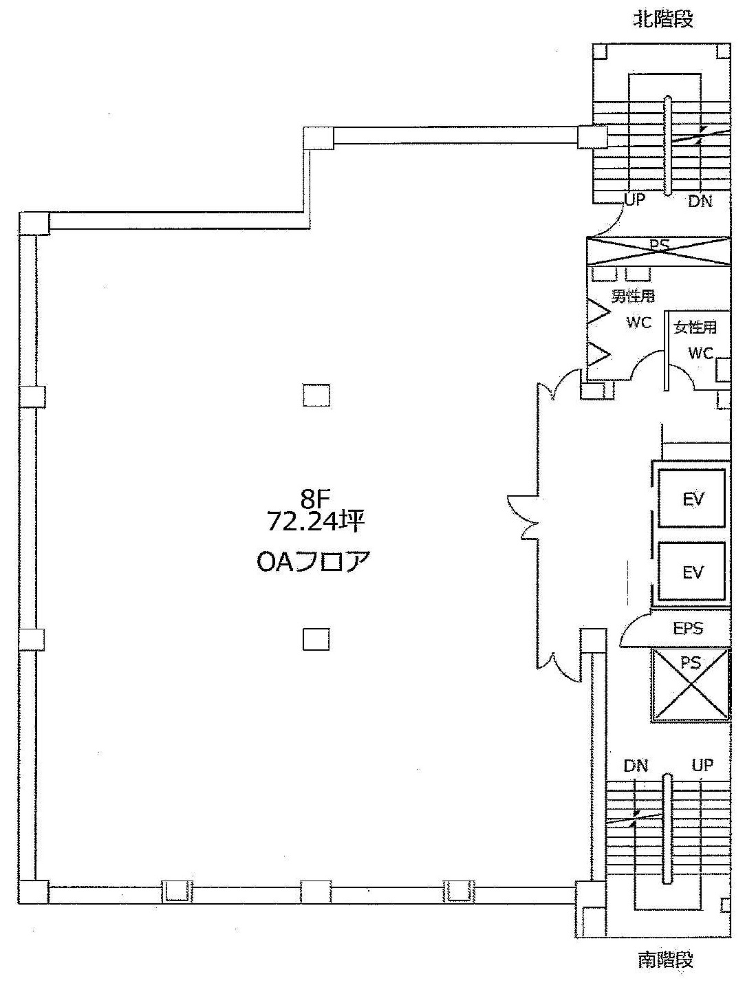
物件番号:A107408
8階72.24坪

- この物件の賃料の価格帯(共益費込)
- この部屋は成約済みです
| 物件名 | 南星本館 【このビルのその他の募集階】 |
||
|---|---|---|---|
| 住所 | 大阪府大阪市中央区淡路町4丁目4番13号 淀屋橋・北浜・本町・堺筋本町でよく検索されるその他の物件 |
||
| 構造(規模) | 鉄骨鉄筋コンクリート造地上11階地下1階建 | ||
| 築年月 | 1976年3月31日 | ||
| 坪数 |
72.24坪 |
||
| 階数 | 8階 | ||
| 保証金 | - | ||
| 敷金 | - | ||
| 礼金 | - | ||
| 沿線 最寄駅 |
地下鉄御堂筋線 本町駅 徒歩4分 (本町駅の賃貸事務所) 地下鉄御堂筋線 淀屋橋駅 徒歩5分 (淀屋橋駅の賃貸事務所) 地下鉄中央線 本町駅 徒歩6分 (本町駅の賃貸事務所) |
||
| アクセス | 新大阪駅まで電車15分 大阪駅梅田駅まで電車8分 関西空港まで電車52分、車46分 伊丹空港まで車23分 高速入口:環状線堂島・信濃橋・阿波座入口 |
||
| EV基数 | 2基 | 人荷EV基数 | - |
| 空調タイプ | 個別 | ||
| 備考 | |||

レンガ張りの外観が目を引くオフィスビル。御堂筋線淀屋橋駅・本町駅のちょうど真ん中に位置する便利な立地。基準階面積は100坪を超え北南どちら側にも採光が取れます。オーナーも入居しており、なにかあっても安心ですし、手入れの行き届いたオフィスです。
- お電話でお問い合わせ(無料)
-
平日13時までのお問い合わせで
当日に物件をご紹介!
お電話の場合「物件番号:A107408」
をお伝えください
