お気に入りを解除しました。
明治安田生命大阪御堂筋
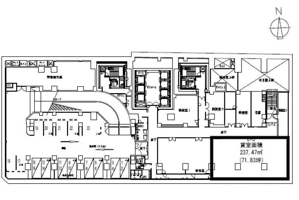
物件番号:A104406
地下2階71.92坪

- この物件の賃料の価格帯(共益費込)
- この部屋は成約済みです
| 物件名 | 明治安田生命大阪御堂筋 【このビルのその他の募集階】 |
||
|---|---|---|---|
| 住所 | 大阪府大阪市中央区伏見町4丁目1番2号 淀屋橋・北浜でよく検索されるその他の物件 |
||
| 構造(規模) | 鉄骨鉄筋コンクリート造地上14階地下3階建 | ||
| 築年月 | 2001年8月1日 | ||
| 坪数 |
71.92坪 |
||
| 階数 | 地下2階 | ||
| 保証金 | - | ||
| 敷金 | - | ||
| 礼金 | - | ||
| 沿線 最寄駅 |
地下鉄御堂筋線 淀屋橋駅 徒歩1分 (淀屋橋駅の賃貸事務所) 地下鉄四つ橋線 肥後橋駅 徒歩4分 (肥後橋駅の賃貸事務所) 京阪線(本線・中之島線) 淀屋橋駅 徒歩5分 (淀屋橋駅の賃貸事務所) |
||
| アクセス | 新大阪駅まで電車10分 大阪駅梅田駅まで電車4分 関西空港まで電車51分、車46分 伊丹空港まで車25分 高速入口:環状線信濃橋・中之島入口 |
||
| EV基数 | 7基 | 人荷EV基数 | 2基 |
| 空調タイプ | 個別 | ||
| 備考 | ・駅直結・大通り沿い ・天井高2.8m・新耐震基準適合 ・免震構造・大型車用駐車場完備 ・エレベーター10基・貸会議室有り |
||

明治安田生命大阪御堂筋ビルは2001年竣工、基準階面積約480坪の大型ランドマークオフィス。御堂筋から裏通りまで見通せる開放感の高い低層部の外観と、吹き抜けのエントランスホールや明るく透明感のあるファサードのデザインがビルを印象付けています。ビルのグレード感も申し分ないのですが、一番の特徴はアクセスの良さ。大阪メトロ御堂筋線「淀屋橋駅」13番出口直結です。
- お電話でお問い合わせ(無料)
-
平日13時までのお問い合わせで
当日に物件をご紹介!
お電話の場合「物件番号:A104406」
をお伝えください

