お気に入りを解除しました。
入商八木
物件番号:A101215
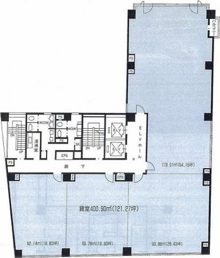
5階121.27坪

- この物件の賃料の価格帯(共益費込)
- 坪@12,001円~@15,000円
| 物件名 | 入商八木 【このビルのその他の募集階】 |
||
|---|---|---|---|
| 住所 | 大阪府大阪市中央区北浜2丁目3番9号 淀屋橋・北浜でよく検索されるその他の物件 |
||
| 構造(規模) | 鉄骨鉄筋コンクリート造地上10階地下1階建 | ||
| 築年月 | 1990年5月1日 | ||
| 坪数 |
121.27坪 |
||
| 階数 | 5階 | ||
| 保証金 | 相談 | ||
| 敷金 | - | ||
| 礼金 | - | ||
| 沿線 最寄駅 |
地下鉄堺筋線 北浜駅 徒歩1分 (北浜駅の賃貸事務所) 京阪線(本線・中之島線) 北浜駅 徒歩1分 (北浜駅の賃貸事務所) 地下鉄御堂筋線 淀屋橋駅 徒歩4分 (淀屋橋駅の賃貸事務所) |
||
| アクセス | 新大阪駅まで電車12分 大阪駅梅田駅まで電車7分 関西空港まで電車51分、車46分 伊丹空港まで車25分 高速入口:環状線高麗橋入口 |
||
| EV基数 | 2基 | 人荷EV基数 | - |
| 空調タイプ | 個別 | ||
| 備考 | ・駅近・大通り沿い ・新耐震基準適合・南北両方採光有り ・管理人常駐 |
||

入商八木ビルは北浜駅徒歩1分の堺筋からも見える立地にあるビル。基準階面積が122坪でありながら約19坪~分割ができるので希望面積にフレキシブルな対応ができます。エレベーターは2基あり、混雑する時間帯ももストレスなくご利用頂けます。地下1階には管理人さんも常駐し、とても親切にご対応頂いています。
- お電話でお問い合わせ(無料)
-
平日13時までのお問い合わせで
当日に物件をご紹介!
お電話の場合「物件番号:A101215」
をお伝えください
