お気に入りを解除しました。
大阪駅前第3
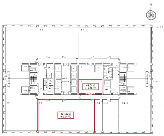
物件番号:C301103
31階80.04坪

- この物件の賃料の価格帯(共益費込)
- 坪@20,001円~@30,000円
| 物件名 | 大阪駅前第3 【このビルのその他の募集階】 続きを表示 ▼ |
||
|---|---|---|---|
| 住所 | 大阪府大阪市北区梅田1丁目1番3号 梅田・南森町でよく検索されるその他の物件 |
||
| 構造(規模) | 鉄骨鉄筋コンクリート造・鉄骨造陸屋根地上34階地下4階建 | ||
| 築年月 | 1979年9月1日 | ||
| 坪数 |
80.04坪 |
||
| 階数 | 31階 | ||
| 保証金 | |||
| 敷金 | 相談 | ||
| 礼金 | - | ||
| 沿線 最寄駅 |
地下鉄御堂筋線 梅田駅 徒歩3分 (梅田駅の賃貸事務所) 地下鉄四つ橋線 西梅田駅 徒歩2分 (西梅田駅の賃貸事務所) JR大阪環状線 大阪駅 徒歩4分 (大阪駅の賃貸事務所) |
||
| アクセス | 新大阪駅まで電車10分 大阪駅梅田駅まで電車4分 関西空港まで電車57分、車45分 伊丹空港まで車20分 高速入口:環状線南森町・堂島入口 |
||
| EV基数 | 14基 | 人荷EV基数 | 2基 |
| 空調タイプ | 集中+個別 | ||
| 備考 | |||
各線梅田・大阪駅直結の大型ターミナルビル。基準階面積は500坪、事務所フロアの最小区画は約10坪とバリエーション豊富な提供が可能です。梅田中心部に位置しするのでフットワーク抜群、さまざまな業種のテナントが入居中。近年、大変人気のある物件です。
- お電話でお問い合わせ(無料)
-
平日13時までのお問い合わせで
当日に物件をご紹介!
お電話の場合「物件番号:C301103」
をお伝えください

