お気に入りを解除しました。
ロイヤルクイーン
物件番号:A203117
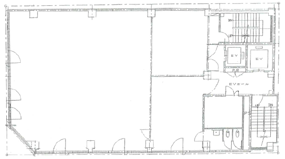
4階68.42坪

- この物件の賃料の価格帯(共益費込)
- 坪@3,000円~@8,000円
| 物件名 | ロイヤルクイーン 【このビルのその他の募集階】 |
||
|---|---|---|---|
| 住所 | 大阪府大阪市中央区南久宝寺町1丁目7番5号 本町・堺筋本町でよく検索されるその他の物件 |
||
| 構造(規模) | 鉄骨鉄筋コンクリート造8階建 | ||
| 築年月 | 1977年10月 | ||
| 坪数 |
68.42坪 |
||
| 階数 | 4階 | ||
| 保証金 | |||
| 敷金 | - | ||
| 礼金 | 賃料の2カ月分 | ||
| 沿線 最寄駅 |
地下鉄堺筋線 堺筋本町駅 徒歩4分 (堺筋本町駅の賃貸事務所) 地下鉄中央線 堺筋本町駅 徒歩4分 (堺筋本町駅の賃貸事務所) 地下鉄長堀鶴見緑地線 長堀橋駅 徒歩6分 (長堀橋駅の賃貸事務所) |
||
| アクセス | 新大阪駅まで電車17分 大阪駅梅田駅まで電車12分 関西空港まで電車53分、車45分 伊丹空港まで車20分 高速入口:長堀入口 |
||
| EV基数 | 2基 | 人荷EV基数 | - |
| 空調タイプ | 個別 | ||
| 備考 | |||
- お電話でお問い合わせ(無料)
-
平日13時までのお問い合わせで
当日に物件をご紹介!
お電話の場合「物件番号:A203117」
をお伝えください

