お気に入りを解除しました。
大明
物件番号:C503320
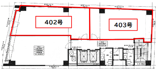
4階33.23坪

- この物件の賃料の価格帯(共益費込)
- 坪@12,001円~@15,000円
| 物件名 | 大明 【このビルのその他の募集階】 |
||
|---|---|---|---|
| 住所 | 大阪府大阪市北区豊崎3丁目20番10号 梅田でよく検索されるその他の物件 |
||
| 構造(規模) | 鉄筋コンクリート造地上10階地下1階建 | ||
| 築年月 | 1991年12月1日 | ||
| 坪数 |
33.23坪 |
||
| 階数 | 4階 | ||
| 保証金 | |||
| 敷金 | 賃料の10カ月分 | ||
| 礼金 | - | ||
| 沿線 最寄駅 |
地下鉄御堂筋線 中津駅 徒歩1分 (中津駅の賃貸事務所) 地下鉄御堂筋線 梅田駅 徒歩10分 (梅田駅の賃貸事務所) JR大阪環状線 大阪駅 徒歩11分 (大阪駅の賃貸事務所) |
||
| アクセス | 新大阪駅まで電車16分 大阪駅梅田駅まで電車10分 関西空港まで電車61分、車45分 伊丹空港まで車20分 高速入口:環状線南森町・扇町入口 |
||
| EV基数 | 2基 | 人荷EV基数 | - |
| 空調タイプ | 個別 | ||
| 備考 | |||
大阪メトロ御堂筋線【中津駅】徒歩1分、梅田駅からも徒歩圏内の立地に位置するビル。大通り沿いのシャープな外観が目をひきます。白を基調とした吹き抜けのエントランスは清潔感と解放感を演出しているため、来店されたお客様にもいい印象を与えます。
- お電話でお問い合わせ(無料)
-
平日13時までのお問い合わせで
当日に物件をご紹介!
お電話の場合「物件番号:C503320」
をお伝えください
