お気に入りを解除しました。
堺筋本町センター
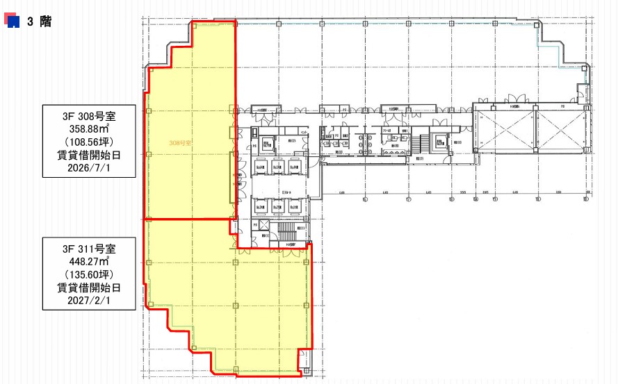
物件番号:A111201
3階135.6坪

- この物件の賃料の価格帯(共益費込)
- 坪@15,001円~@20,000円
| 物件名 | 堺筋本町センター 【このビルのその他の募集階】 |
||
|---|---|---|---|
| 住所 | 大阪府大阪市中央区本町2丁目1番6号 本町・堺筋本町でよく検索されるその他の物件 |
||
| 構造(規模) | 鉄骨・鉄骨鉄筋コンクリート造地上16階地下1階建 | ||
| 築年月 | 1991年5月1日 | ||
| 坪数 |
135.6坪 |
||
| 階数 | 3階 | ||
| 保証金 | |||
| 敷金 | 賃料の12カ月分 | ||
| 礼金 | - | ||
| 沿線 最寄駅 |
地下鉄堺筋線 堺筋本町駅 徒歩1分 (堺筋本町駅の賃貸事務所) 地下鉄中央線 堺筋本町駅 徒歩3分 (堺筋本町駅の賃貸事務所) 地下鉄御堂筋線 本町駅 徒歩6分 (本町駅の賃貸事務所) |
||
| アクセス | 新大阪駅まで電車19分 大阪駅梅田駅まで電車13分 関西空港まで電車51分、車48分 伊丹空港まで車20分 高速入口:環状線高麗橋・信濃橋・阿波座 |
||
| EV基数 | 4基 | 人荷EV基数 | 1基 |
| 空調タイプ | 集中+個別 | ||
| 備考 | |||
本町通と堺筋の交差点角に立地する大型のオフィスビルです。視認性も高く堺筋本町エリアを代表するビルのひとつです。1階には銀行や大手カフェチェーン、コンビニなどが入居中で、オフィスワークの合間の利用にたいへん便利です。
- お電話でお問い合わせ(無料)
-
平日13時までのお問い合わせで
当日に物件をご紹介!
お電話の場合「物件番号:A111201」
をお伝えください

