お気に入りを解除しました。
REZET新大阪
物件番号:D101642
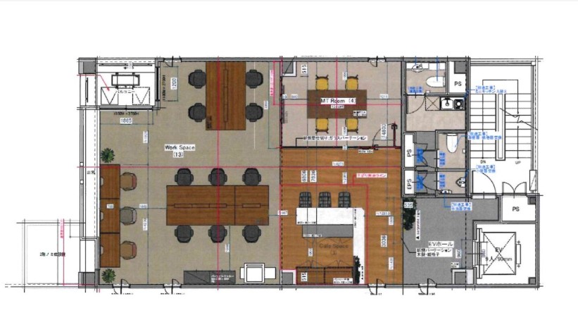
6階【セットアップオフィス】31.41坪

- この物件の賃料の価格帯(共益費込)
- 坪@15,001円~@20,000円
| 物件名 | REZET新大阪 【このビルのその他の募集階】 |
||
|---|---|---|---|
| 住所 | 大阪府大阪市淀川区西中島6丁目11番28号 新大阪・西中島でよく検索されるその他の物件 |
||
| 構造(規模) | 鉄骨・鉄筋コンクリート造地陸屋根7階建 | ||
| 築年月 | 1998年10月 | ||
| 坪数 |
31.41坪 |
||
| 階数 | 6階 | ||
| 保証金 | |||
| 敷金 | 賃料の12カ月分 | ||
| 礼金 | - | ||
| 沿線 最寄駅 |
地下鉄御堂筋線 新大阪駅 徒歩7分 (新大阪駅の賃貸事務所) |
||
| アクセス | 関西空港まで電車79分、車59分 伊丹空港まで車36分 |
||
| EV基数 | 1基 | 人荷EV基数 | - |
| 空調タイプ | 個別 | ||
| 備考 | |||
REZET新大阪ビルは大阪メトロ御堂筋線「新大阪駅」より徒歩7分の立地に位置するビルです。
- お電話でお問い合わせ(無料)
-
平日13時までのお問い合わせで
当日に物件をご紹介!
お電話の場合「物件番号:D101642」
をお伝えください

