お気に入りを解除しました。
三共本町(旧日鉄本町)
物件番号:B104159
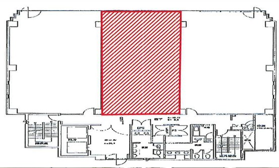
8階35.68坪

- この物件の賃料の価格帯(共益費込)
- 坪@8,001円~@12,000円
| 物件名 | 三共本町(旧日鉄本町) 【このビルのその他の募集階】 |
||
|---|---|---|---|
| 住所 | 大阪府大阪市西区靭本町1丁目10番24号 肥後橋・本町でよく検索されるその他の物件 |
||
| 構造(規模) | 鉄骨鉄筋コンクリート造地上12階地下2階建 | ||
| 築年月 | 1991年7月1日 | ||
| 坪数 |
35.68坪 |
||
| 階数 | 8階 | ||
| 保証金 | |||
| 敷金 | 賃料の10カ月分 | ||
| 礼金 | - | ||
| 沿線 最寄駅 |
地下鉄四つ橋線 本町駅 徒歩2分 (本町駅の賃貸事務所) 地下鉄御堂筋線 本町駅 徒歩4分 (本町駅の賃貸事務所) 地下鉄中央線 本町駅 徒歩3分 (本町駅の賃貸事務所) |
||
| アクセス | 新大阪駅まで電車15分 大阪駅梅田駅まで電車9分 関西空港まで電車53分、車40分 伊丹空港まで車20分 高速入口:環状線 信濃橋・阿波座 入口 |
||
| EV基数 | 2基 | 人荷EV基数 | - |
| 空調タイプ | 個別 | ||
| 備考 | |||
公開空地が広く、植え込みの樹木が綺麗なハイグレードオフィスビル。
- お電話でお問い合わせ(無料)
-
平日13時までのお問い合わせで
当日に物件をご紹介!
お電話の場合「物件番号:B104159」
をお伝えください

