お気に入りを解除しました。
三共梅田(旧大阪合同)
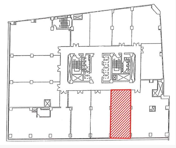
物件番号:C208002
3階27.41坪

- この物件の賃料の価格帯(共益費込)
- 坪@12,001円~@15,000円
| 物件名 | 三共梅田(旧大阪合同) 【このビルのその他の募集階】 |
||
|---|---|---|---|
| 住所 | 大阪府大阪市北区堂山町1番5号 梅田・南森町でよく検索されるその他の物件 |
||
| 構造(規模) | 鉄骨鉄筋コンクリート造地上9階地下2階 | ||
| 築年月 | 1965年8月1日 | ||
| 坪数 |
27.41坪 |
||
| 階数 | 3階 | ||
| 保証金 | |||
| 敷金 | 賃料の10カ月分 | ||
| 礼金 | - | ||
| 沿線 最寄駅 |
地下鉄谷町線 東梅田駅 徒歩5分 (東梅田駅の賃貸事務所) 地下鉄御堂筋線 梅田駅 徒歩7分 (梅田駅の賃貸事務所) 地下鉄堺筋線 扇町駅 徒歩5分 (扇町駅の賃貸事務所) |
||
| アクセス | 新大阪駅まで電車16分 大阪駅梅田駅まで電車10分 関西空港まで電車62分、車45分 伊丹空港まで車20分 高速入口:守口線扇町・環状線南森町入口 |
||
| EV基数 | 4基 | 人荷EV基数 | 1基 |
| 空調タイプ | 個別 | ||
| 備考 | 扇町通りに面す大型ビル。2013年内外装フルリニューアル。館内郵便局あり、喫煙所、駐輪場、屋上にリフレッシュスペースあり。 | ||
透明感のあるクリアなガラス張りのエントランスとモダンな黒い外観がマッチしています。1、2階は物販飲食店フロアになっており、利便性の高いオフィスです。
- お電話でお問い合わせ(無料)
-
平日13時までのお問い合わせで
当日に物件をご紹介!
お電話の場合「物件番号:C208002」
をお伝えください

