お気に入りを解除しました。
MS大阪
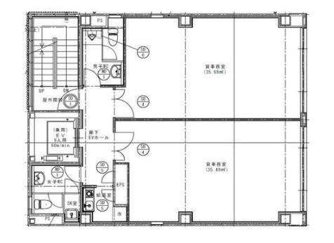
物件番号:D203203
2階10.75坪

- この物件の賃料の価格帯(共益費込)
- 坪@8,001円~@12,000円
| 物件名 | MS大阪 【このビルのその他の募集階】 |
||
|---|---|---|---|
| 住所 | 大阪府大阪市淀川区三国本町2丁目18番33号 江坂・千里中央・箕面でよく検索されるその他の物件 |
||
| 構造(規模) | 鉄骨造地上5階建 | ||
| 築年月 | 2025年11月 | ||
| 坪数 |
10.75坪 |
||
| 階数 | 2階 | ||
| 保証金 | |||
| 敷金 | 賃料の3カ月分 | ||
| 礼金 | - | ||
| 沿線 最寄駅 |
|||
| アクセス | 新大阪駅まで電車11分 大阪駅梅田駅まで電車13分 関西空港まで電車79分、車60分 伊丹空港まで車18分 |
||
| EV基数 | 1基 | 人荷EV基数 | - |
| 空調タイプ | 個別 | ||
| 備考 | |||
- お電話でお問い合わせ(無料)
-
平日13時までのお問い合わせで
当日に物件をご紹介!
お電話の場合「物件番号:D203203」
をお伝えください

