お気に入りを解除しました。
一利喜
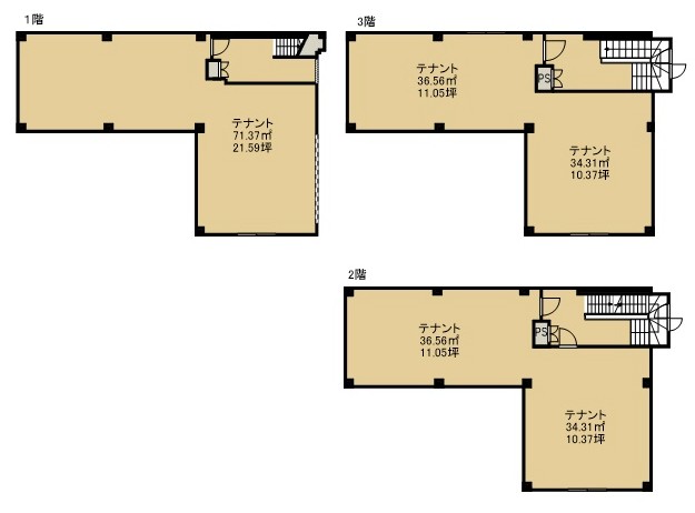
物件番号:O201202
3階21.42坪

- この物件の賃料の価格帯(共益費込)
- 坪@3,000円~@8,000円
| 物件名 | 一利喜 【このビルのその他の募集階】 |
||
|---|---|---|---|
| 住所 | 大阪府池田市石橋2丁目2番8号 でよく検索されるその他の物件 |
||
| 構造(規模) | 鉄骨造3階建 | ||
| 築年月 | 1995年2月 | ||
| 坪数 |
21.42坪 |
||
| 階数 | 3階 | ||
| 保証金 | |||
| 敷金 | 賃料の2カ月分 | ||
| 礼金 | - | ||
| 沿線 最寄駅 |
|||
| アクセス | 新大阪駅まで電車28分 大阪駅梅田駅まで電車19分 関西空港まで電車84分、車62分 伊丹空港まで車8分 |
||
| EV基数 | - | 人荷EV基数 | - |
| 空調タイプ | |||
| 備考 | |||

一利喜ビルは阪急宝塚線「石橋阪大前駅」より徒歩1分の立地に位置するビルです。
- お電話でお問い合わせ(無料)
-
平日13時までのお問い合わせで
当日に物件をご紹介!
お電話の場合「物件番号:O201202」
をお伝えください

