お気に入りを解除しました。
第一住建南久宝寺町
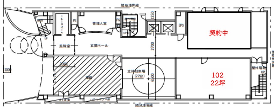
物件番号:A203301
1階22坪

- この物件の賃料の価格帯(共益費込)
- 坪@8,001円~@12,000円
| 物件名 | 第一住建南久宝寺町 【このビルのその他の募集階】 |
||
|---|---|---|---|
| 住所 | 大阪府大阪市中央区南久宝寺町3丁目2番7号 本町・堺筋本町・心斎橋・長堀橋でよく検索されるその他の物件 |
||
| 構造(規模) | 鉄骨造地上10階建 | ||
| 築年月 | 1991年3月1日 | ||
| 坪数 |
22坪 |
||
| 階数 | 1階 | ||
| 保証金 | |||
| 敷金 | 賃料の5カ月分 | ||
| 礼金 | 賃料の1カ月分 | ||
| 沿線 最寄駅 |
地下鉄御堂筋線 本町駅 徒歩5分 (本町駅の賃貸事務所) 地下鉄中央線 本町駅 徒歩5分 (本町駅の賃貸事務所) 地下鉄堺筋線 堺筋本町駅 徒歩6分 (堺筋本町駅の賃貸事務所) |
||
| アクセス | 新大阪駅まで電車18分 大阪駅梅田駅まで電車12分 関西空港まで電車53分、車46分 伊丹空港まで車20分 高速入口:環状線信濃橋・阿波座・長堀 入口 |
||
| EV基数 | 2基 | 人荷EV基数 | - |
| 空調タイプ | 個別 | ||
| 備考 | |||
大阪メトロ御堂筋線「本町駅」徒歩5分の立地に位置するビル。全面ガラス張りで丸く突き出た窓が特徴的な外観で、視認性が高いビルとなっています。9階にコワーキングスペースが設置されており、テナント向けに会議室の貸出を行っています。設備としてはエレベーターが2基あり駐車場が併設されているため、荷物の出し入れが多い方にもおすすめです。
- お電話でお問い合わせ(無料)
-
平日13時までのお問い合わせで
当日に物件をご紹介!
お電話の場合「物件番号:A203301」
をお伝えください
