お気に入りを解除しました。
KFセンター
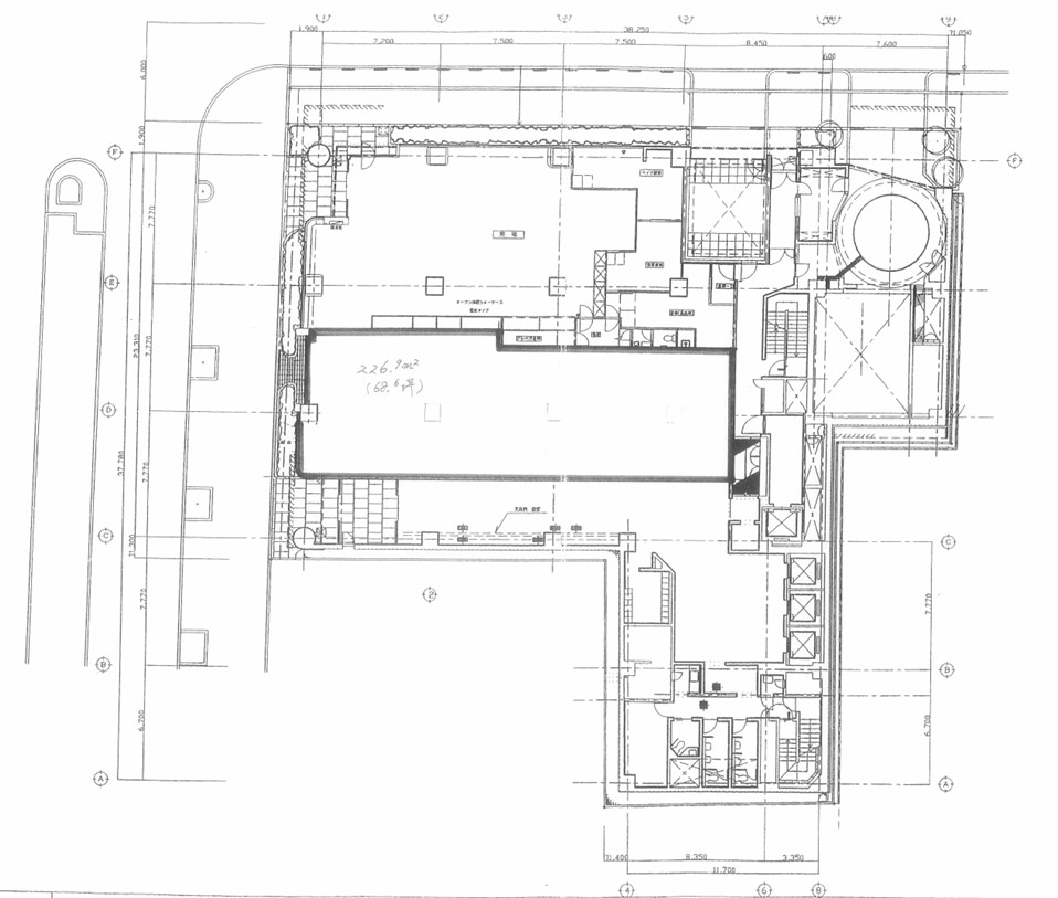
物件番号:A109318
1階68.6坪

- この物件の賃料の価格帯(共益費込)
- 坪@30,001円以上
| 物件名 | KFセンター 【このビルのその他の募集階】 |
||
|---|---|---|---|
| 住所 | 大阪府大阪市中央区備後町3丁目6番2号 本町・堺筋本町でよく検索されるその他の物件 |
||
| 構造(規模) | 鉄骨鉄筋コンクリート造地上10階地下2階建 | ||
| 築年月 | 1988年2月28日 | ||
| 坪数 |
68.6坪 |
||
| 階数 | 1階 | ||
| 保証金 | |||
| 敷金 | 賃料の12カ月分 | ||
| 礼金 | - | ||
| 沿線 最寄駅 |
地下鉄御堂筋線 本町駅 徒歩1分 (本町駅の賃貸事務所) 地下鉄中央線 本町駅 徒歩3分 (本町駅の賃貸事務所) 地下鉄堺筋線 堺筋本町駅 徒歩6分 (堺筋本町駅の賃貸事務所) |
||
| アクセス | 新大阪駅まで電車13分 大阪駅梅田駅まで電車7分 関西空港まで電車50分、車49分 伊丹空港まで車20分 高速入口:環状線信濃橋・阿波座入口 |
||
| EV基数 | 3基 | 人荷EV基数 | 1基 |
| 空調タイプ | 集中+個別 | ||
| 備考 | ・大通り沿い ・角ビル ・新耐震基準適合 ・エレベーター4基(うち人荷用1基) ・2012年リニューアル |
||

御堂筋線「本町」駅徒歩1分、御堂筋に面すワンフロア約223坪の大型角ビルです。2012年3月全面リニューアルし、エントランス、共用部、トイレ全てが一新しました。1階にはコンビニがあります。周辺には郵便局、金融機関も多く利便性の高い立地です。ランチ、仕事帰りのちょっと一杯も選択肢がたくさんあります。
- お電話でお問い合わせ(無料)
-
平日13時までのお問い合わせで
当日に物件をご紹介!
お電話の場合「物件番号:A109318」
をお伝えください
