お気に入りを解除しました。
センバセントラル
物件番号:A111208
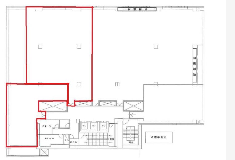
6階89.55坪

- この物件の賃料の価格帯(共益費込)
- 坪@12,001円~@15,000円
| 物件名 | センバセントラル 【このビルのその他の募集階】 |
||
|---|---|---|---|
| 住所 | 大阪府大阪市中央区本町2丁目6番8号 本町・堺筋本町でよく検索されるその他の物件 |
||
| 構造(規模) | 鉄骨鉄筋コンクリート造9階建 地下 2 階 | ||
| 築年月 | 1969年1月1日 | ||
| 坪数 |
89.55坪 |
||
| 階数 | 6階 | ||
| 保証金 | |||
| 敷金 | 賃料の12カ月分 | ||
| 礼金 | - | ||
| 沿線 最寄駅 |
地下鉄堺筋線 堺筋本町駅 徒歩2分 (堺筋本町駅の賃貸事務所) 地下鉄中央線 堺筋本町駅 徒歩3分 (堺筋本町駅の賃貸事務所) 地下鉄御堂筋線 本町駅 徒歩4分 (本町駅の賃貸事務所) |
||
| アクセス | 新大阪駅まで電車19分 大阪駅梅田駅まで電車13分 関西空港まで電車50分、車48分 伊丹空港まで車20分 高速入口:環状線信濃橋・阿波座 |
||
| EV基数 | 3基 | 人荷EV基数 | - |
| 空調タイプ | 個別 | ||
| 備考 | 耐震補強工事済、新耐震基準適合物件です。 | ||

ビル名の通り船場のど真ん中、本町通に面しています。本町駅と堺筋本町駅のちょうど中間点あたりに位置する大型オフィスビルです。高級感あるゆったりとしたエントランスが出迎えてくれます。1階には銀行が入居中。周辺にはコンビニや飲食店が数多くあり、便利な立地です。
- お電話でお問い合わせ(無料)
-
平日13時までのお問い合わせで
当日に物件をご紹介!
お電話の場合「物件番号:A111208」
をお伝えください
