お気に入りを解除しました。
グリーンコーポ天満橋
物件番号:C112128
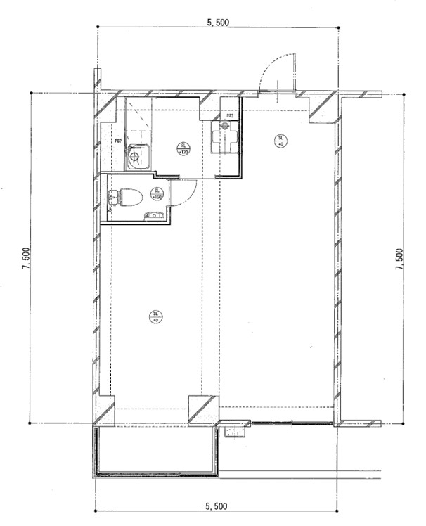
4階13.45坪

- この物件の賃料の価格帯(共益費込)
- 坪@3,000円~@8,000円
| 物件名 | グリーンコーポ天満橋 【このビルのその他の募集階】 |
||
|---|---|---|---|
| 住所 | 大阪府大阪市北区天満1丁目18番8号 天満橋・谷町でよく検索されるその他の物件 |
||
| 構造(規模) | 鉄筋コンクリート造7階建 | ||
| 築年月 | 1981年7月 | ||
| 坪数 |
13.45坪 |
||
| 階数 | 4階 | ||
| 保証金 | |||
| 敷金 | 賃料の1カ月分 | ||
| 礼金 | - | ||
| 沿線 最寄駅 |
地下鉄谷町線 天満橋駅 徒歩8分 (天満橋駅の賃貸事務所) 京阪線(本線・中之島線) 天満橋駅 徒歩8分 (天満橋駅の賃貸事務所) |
||
| アクセス | |||
| EV基数 | 1基 | 人荷EV基数 | - |
| 空調タイプ | 個別 | ||
| 備考 | |||
- お電話でお問い合わせ(無料)
-
平日13時までのお問い合わせで
当日に物件をご紹介!
お電話の場合「物件番号:C112128」
をお伝えください

