お気に入りを解除しました。
きんえいアポロ
物件番号:N301108
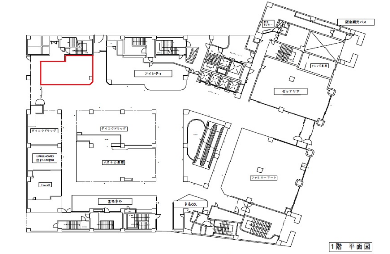
1階16.62坪

- この物件の賃料の価格帯(共益費込)
- 坪@15,001円~@20,000円
| 物件名 | きんえいアポロ 【このビルのその他の募集階】 |
||
|---|---|---|---|
| 住所 | 大阪府大阪市阿倍野区阿倍野筋1丁目5番31号 天満橋・谷町でよく検索されるその他の物件 |
||
| 構造(規模) | 鉄骨鉄筋コンクリート造地上12階地下4階建 | ||
| 築年月 | 1972年7月22日 | ||
| 坪数 |
16.62坪 |
||
| 階数 | 1階 | ||
| 保証金 | |||
| 敷金 | 賃料の12カ月分 | ||
| 礼金 | - | ||
| 沿線 最寄駅 |
地下鉄御堂筋線 天王寺駅 徒歩1分 (天王寺駅の賃貸事務所) JR大阪環状線 天王寺駅 徒歩1分 (天王寺駅の賃貸事務所) 地下鉄谷町線 天王寺駅 徒歩1分 (天王寺駅の賃貸事務所) |
||
| アクセス | 新大阪駅まで電車25分 大阪駅梅田駅まで電車19分 関西空港まで電車40分、車45分 伊丹空港まで車30分 高速入口:阿倍野・文の里入口 |
||
| EV基数 | - | 人荷EV基数 | - |
| 空調タイプ | 集中 | ||
| 備考 | ・駅直結・大通り沿い ・2019年耐震補強工事済み ・空中店舗可 |
||

あびこ筋沿いに面する大型商業施設ビル。近鉄『大阪阿部野橋駅』、各線『天王寺駅』から地下で繋がっている為、雨の日でも傘を差さずにたどり着くことができます。また隣接するあべのルシアスビルへも連絡通路からアクセス可能。テナントは飲食店やアミューズメント、書店など様々揃っています。
- お電話でお問い合わせ(無料)
-
平日13時までのお問い合わせで
当日に物件をご紹介!
お電話の場合「物件番号:N301108」
をお伝えください
類似物件のご紹介
M.BALANSE⁺ OSAKA TANIMACHI(旧RE-LAB大阪中央)
-
-
住所 大阪府大阪市中央区鎗屋町2丁目2番9号 交通 地下鉄谷町線 谷町四丁目駅 徒歩4分
地下鉄中央線 谷町四丁目駅 徒歩4分
地下鉄堺筋線 堺筋本町駅 徒歩8分
竣工 1990年4月1日 構造 鉄筋コンクリート造地上8階

