お気に入りを解除しました。
The Village Osaka(富士ソフト大阪)
物件番号:A111109
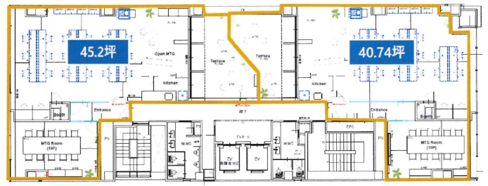
9階45.2坪

- この物件の賃料の価格帯(共益費込)
- 坪@20,001円~@30,000円
| 物件名 | The Village Osaka(富士ソフト大阪) 【このビルのその他の募集階】 続きを表示 ▼ |
||
|---|---|---|---|
| 住所 | 大阪府大阪市中央区本町1丁目6番17号 本町・堺筋本町でよく検索されるその他の物件 |
||
| 構造(規模) | 鉄骨鉄筋コンクリート造地上10階地下1階建 | ||
| 築年月 | 1996年 | ||
| 坪数 |
45.2坪 |
||
| 階数 | 9階 | ||
| 保証金 | |||
| 敷金 | - | ||
| 礼金 | - | ||
| 沿線 最寄駅 |
地下鉄堺筋線 堺筋本町駅 徒歩1分 (堺筋本町駅の賃貸事務所) 地下鉄中央線 堺筋本町駅 徒歩3分 (堺筋本町駅の賃貸事務所) 地下鉄御堂筋線 本町駅 徒歩7分 (本町駅の賃貸事務所) |
||
| アクセス | 新大阪駅まで電車20分 大阪駅梅田駅まで電車14分 関西空港まで電車51分、車48分 伊丹空港まで車20分 高速入口:環状線 高麗橋・信濃橋・阿波座 入口 |
||
| EV基数 | 2基 | 人荷EV基数 | - |
| 空調タイプ | 個別 | ||
| 備考 | ・初期費用を抑えられるセットアップオフィス ・駅近好立地ビル ・共用部大規模リニューアル ・敷金、礼金が抑えれる物件 ・1階ラウンジ、2階貸会議室 |
||

The Village Osakaビルは大阪メトロ「堺筋本町駅」徒歩1分、御堂筋線「本町駅」徒歩7分の立地に位置するビルです。
こちらのビルはセットアップオフィスで敷金礼金も抑えら得る物件ですので、初期費用がぐんと下げられます。
成長スピードが著しくどんどん拡張移転をしたい!という企業様にはもってこいの物件です。
- お電話でお問い合わせ(無料)
-
平日13時までのお問い合わせで
当日に物件をご紹介!
お電話の場合「物件番号:A111109」
をお伝えください

