お気に入りを解除しました。
セントピア堺筋本町
物件番号:A112202
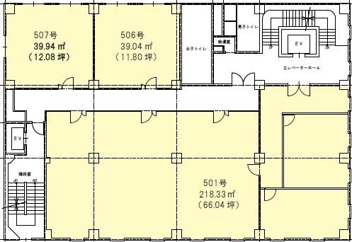
5階107.6坪

- この物件の賃料の価格帯(共益費込)
- 坪@8,001円~@12,000円
| 物件名 | セントピア堺筋本町 【このビルのその他の募集階】 |
||
|---|---|---|---|
| 住所 | 大阪府大阪市中央区南本町2丁目1番3号 本町・堺筋本町でよく検索されるその他の物件 |
||
| 構造(規模) | 鉄骨造地下1階地上8階建 | ||
| 築年月 | 1952年1月1日 | ||
| 坪数 |
107.6坪 |
||
| 階数 | 5階 | ||
| 保証金 | 総額9,684,000円(@90,000円/坪) | ||
| 敷金 | - | ||
| 礼金 | - | ||
| 沿線 最寄駅 |
地下鉄堺筋線 堺筋本町駅 徒歩1分 (堺筋本町駅の賃貸事務所) 地下鉄中央線 堺筋本町駅 徒歩1分 (堺筋本町駅の賃貸事務所) 地下鉄御堂筋線 本町駅 徒歩6分 (本町駅の賃貸事務所) |
||
| アクセス | 新大阪駅まで電車18分 大阪駅梅田駅まで電車12分 関西空港まで電車50分、車47分 伊丹空港まで車20分 高速入口:環状線信濃橋・阿波座入口 |
||
| EV基数 | 2基 | 人荷EV基数 | - |
| 空調タイプ | 集中+個別 | ||
| 備考 | 定期借家契約(3年)、再契約可能 | ||

堺筋に面し、「堺筋本町」駅徒歩1分、交差点角地に位置するレトロビル。1階玄関はリニューアル済みです。1階にドラッグストアが入居中のわかりやすいビルです。3年間の定期借家契約(再契約は相談可能)になります。基準階面積約100坪ですが、10坪台のコンパクトな貸室もご紹介できます。
- お電話でお問い合わせ(無料)
-
平日13時までのお問い合わせで
当日に物件をご紹介!
お電話の場合「物件番号:A112202」
をお伝えください
