お気に入りを解除しました。
今津北 1棟貸
物件番号:J500104
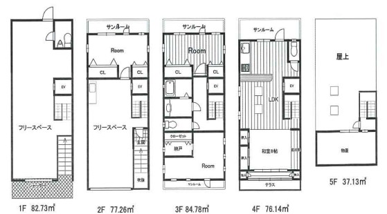
1階~5階108.29坪

- この物件の賃料の価格帯(共益費込)
- 坪@3,000円~@8,000円
| 物件名 | 今津北 1棟貸 【このビルのその他の募集階】 |
||
|---|---|---|---|
| 住所 | 大阪府大阪市鶴見区今津北1丁目7番28号 でよく検索されるその他の物件 |
||
| 構造(規模) | 鉄骨造地上5階建 | ||
| 築年月 | 1990年8月 | ||
| 坪数 |
108.29坪 |
||
| 階数 | 1階~5階 | ||
| 保証金 | |||
| 敷金 | 賃料の1カ月分 | ||
| 礼金 | 賃料の2カ月分 | ||
| 沿線 最寄駅 |
|||
| アクセス | 新大阪駅まで電車34分 大阪駅梅田駅まで電車35分 関西空港まで電車90分、車55分 伊丹空港まで車36分 高速入口:阪神高速 高井田 |
||
| EV基数 | - | 人荷EV基数 | - |
| 空調タイプ | 個別 | ||
| 備考 | |||
- お電話でお問い合わせ(無料)
-
平日13時までのお問い合わせで
当日に物件をご紹介!
お電話の場合「物件番号:J500104」
をお伝えください

