お気に入りを解除しました。
幸町3丁目1棟貸
物件番号:F101303
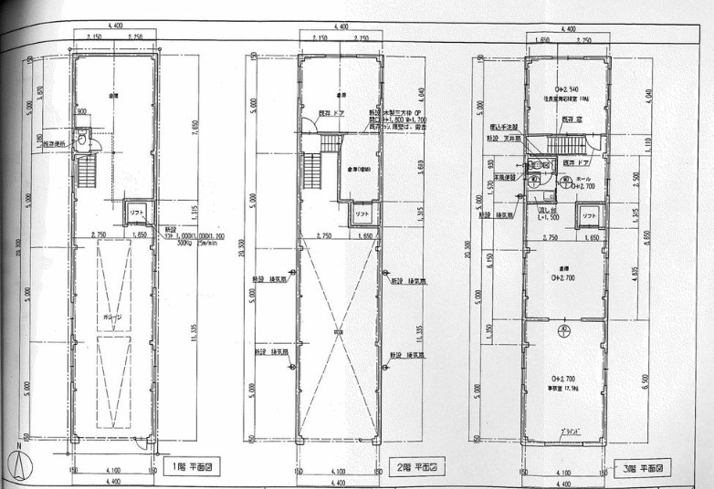
1階~3階60.76坪

- この物件の賃料の価格帯(共益費込)
- 坪@12,001円~@15,000円
| 物件名 | 幸町3丁目1棟貸 【このビルのその他の募集階】 |
||
|---|---|---|---|
| 住所 | 大阪府大阪市浪速区幸町3丁目7番6号 心斎橋・長堀橋でよく検索されるその他の物件 |
||
| 構造(規模) | 鉄骨造亜鉛メッキ鋼板葺3階建 | ||
| 築年月 | 1989年 | ||
| 坪数 |
60.76坪 |
||
| 階数 | 1階~3階 | ||
| 保証金 | |||
| 敷金 | 賃料の6カ月分 | ||
| 礼金 | - | ||
| 沿線 最寄駅 |
地下鉄千日前線 桜川駅 徒歩6分 (桜川駅の賃貸事務所) |
||
| アクセス | 新大阪駅まで電車32分 大阪駅梅田駅まで電車20分 関西空港まで電車72分、車44分 伊丹空港まで車47分 高速入口:阪神高速 環状線湊町 |
||
| EV基数 | - | 人荷EV基数 | - |
| 空調タイプ | 個別 | ||
| 備考 | |||
- お電話でお問い合わせ(無料)
-
平日13時までのお問い合わせで
当日に物件をご紹介!
お電話の場合「物件番号:F101303」
をお伝えください

