お気に入りを解除しました。
NLC新大阪エース
物件番号:D101482
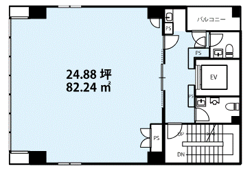
9階24.87坪

- この物件の賃料の価格帯(共益費込)
- 坪@15,001円~@20,000円
| 物件名 | NLC新大阪エース 【このビルのその他の募集階】 |
||
|---|---|---|---|
| 住所 | 大阪府大阪市淀川区西中島4丁目2番9号 新大阪・西中島でよく検索されるその他の物件 |
||
| 構造(規模) | 鉄骨造地上10階地下1階建 | ||
| 築年月 | 2025年12月頃 | ||
| 坪数 |
24.87坪 |
||
| 階数 | 9階 | ||
| 保証金 | 総額1,492,800円(@60,000円/坪) | ||
| 敷金 | - | ||
| 礼金 | - | ||
| 沿線 最寄駅 |
地下鉄御堂筋線 西中島南方駅 徒歩2分 (西中島南方駅の賃貸事務所) JR東海道本線 新大阪駅 徒歩9分 (新大阪駅の賃貸事務所) |
||
| アクセス | |||
| EV基数 | - | 人荷EV基数 | - |
| 空調タイプ | 個別 | ||
| 備考 | |||
- お電話でお問い合わせ(無料)
-
平日13時までのお問い合わせで
当日に物件をご紹介!
お電話の場合「物件番号:D101482」
をお伝えください

