お気に入りを解除しました。
本町NX
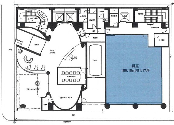
物件番号:A111118
1階51.17坪

- この物件の賃料の価格帯(共益費込)
- 坪@15,001円~@20,000円
| 物件名 | 本町NX 【このビルのその他の募集階】 |
||
|---|---|---|---|
| 住所 | 大阪府大阪市中央区本町1丁目3番15号 本町・堺筋本町でよく検索されるその他の物件 |
||
| 構造(規模) | 鉄骨鉄筋コンクリート造陸屋根地下1階付8階建 | ||
| 築年月 | 1983年10月 | ||
| 坪数 |
51.17坪 |
||
| 階数 | 1階 | ||
| 保証金 | |||
| 敷金 | 賃料の6カ月分 | ||
| 礼金 | - | ||
| 沿線 最寄駅 |
地下鉄堺筋線 堺筋本町駅 徒歩2分 (堺筋本町駅の賃貸事務所) 地下鉄中央線 堺筋本町駅 徒歩2分 (堺筋本町駅の賃貸事務所) 地下鉄御堂筋線 本町駅 徒歩9分 (本町駅の賃貸事務所) |
||
| アクセス | 新大阪駅まで電車20分 大阪駅梅田駅まで電車14分 関西空港まで電車56分、車48分 伊丹空港まで車22分 高速入口:環状線高麗橋・信濃橋・阿波座入口 |
||
| EV基数 | 3基 | 人荷EV基数 | - |
| 空調タイプ | 個別 | ||
| 備考 | |||
- お電話でお問い合わせ(無料)
-
平日13時までのお問い合わせで
当日に物件をご紹介!
お電話の場合「物件番号:A111118」
をお伝えください
類似物件のご紹介
BEARE本町BLDG.(旧Hommachi bldg)
-
-
住所 大阪府大阪市中央区本町2丁目6番5号 交通 地下鉄御堂筋線 本町駅 徒歩5分
地下鉄四つ橋線 本町駅 徒歩5分
地下鉄堺筋線 堺筋本町駅 徒歩5分
竣工 1989年3月 構造 鉄骨鉄造地上8階地下1階建

