お気に入りを解除しました。
VILLAGE RIVER 西天満
物件番号:C201404
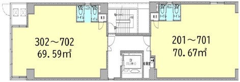
6階21.05坪

- この物件の賃料の価格帯(共益費込)
- 坪@12,001円~@15,000円
| 物件名 | VILLAGE RIVER 西天満 【このビルのその他の募集階】 続きを表示 ▼ |
||
|---|---|---|---|
| 住所 | 大阪府大阪市北区西天満4丁目1番5号 南森町でよく検索されるその他の物件 |
||
| 構造(規模) | 鉄筋コンクリート造地上7階建 | ||
| 築年月 | 2025年6月 | ||
| 坪数 |
21.05坪 |
||
| 階数 | 6階 | ||
| 保証金 | |||
| 敷金 | 賃料の1カ月分 | ||
| 礼金 | 賃料の2カ月分 | ||
| 沿線 最寄駅 |
京阪線(本線・中之島線) なにわ橋駅 徒歩4分 (なにわ橋駅の賃貸事務所) 地下鉄谷町線 南森町駅 徒歩7分 (南森町駅の賃貸事務所) 地下鉄堺筋線 南森町駅 徒歩7分 (南森町駅の賃貸事務所) |
||
| アクセス | 新大阪駅まで電車18分 大阪駅梅田駅まで電車12分 関西空港まで電車59分、車45分 伊丹空港まで車20分 高速入口:環状線南森町・高麗橋入口 |
||
| EV基数 | 1基 | 人荷EV基数 | - |
| 空調タイプ | 個別 | ||
| 備考 | ・2025年築 ・新耐震基準 ・室内水回りあり |
||
西天満エリアに位置するVILLAGE RIVER 西天満ビルは、京阪線(本線・中之島線)「なにわ橋駅」駅徒歩4分、大阪メトロ谷町線「南森町駅」駅徒歩7分の立地にあるオフィスビルです。 裁判所や官公庁が近く、士業関連の方にとって利便性の高い立地です。 レイアウトの自由度が高く、柔軟なオフィス設計が可能です。 構造は鉄筋コンクリート造地上7階建です。 2025年竣工です。 士業の方に特におすすめの物件です。
- お電話でお問い合わせ(無料)
-
平日13時までのお問い合わせで
当日に物件をご紹介!
お電話の場合「物件番号:C201404」
をお伝えください

