お気に入りを解除しました。
トヤマ新館(新トヤマ)
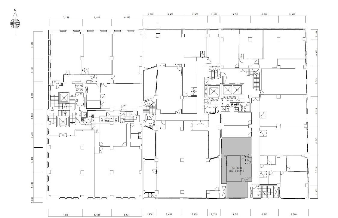
物件番号:A110121
3階24.83坪

- この物件の賃料の価格帯(共益費込)
- この部屋は成約済みです
| 物件名 | トヤマ新館(新トヤマ) 【このビルのその他の募集階】 |
||
|---|---|---|---|
| 住所 | 大阪府大阪市中央区安土町1丁目7番20号 本町・堺筋本町でよく検索されるその他の物件 |
||
| 構造(規模) | 鉄筋コンクリート造地上9階地下1階建 | ||
| 築年月 | 1958年1月1日 | ||
| 坪数 |
24.83坪 |
||
| 階数 | 3階 | ||
| 保証金 | - | ||
| 敷金 | - | ||
| 礼金 | - | ||
| 沿線 最寄駅 |
地下鉄堺筋線 堺筋本町駅 徒歩1分 (堺筋本町駅の賃貸事務所) 地下鉄中央線 堺筋本町駅 徒歩3分 (堺筋本町駅の賃貸事務所) 地下鉄御堂筋線 本町駅 徒歩7分 (本町駅の賃貸事務所) |
||
| アクセス | 新大阪駅まで電車18分 大阪駅梅田駅まで電車12分 関西空港まで電車52分、車51分 伊丹空港まで車20分 高速入口:環状線高麗橋・信濃橋・阿波座 |
||
| EV基数 | 2基 | 人荷EV基数 | - |
| 空調タイプ | 個別 | ||
| 備考 | 天高2.6m~3.0m | ||

堺筋沿いに3棟隣接して建つオフィスビルのうちの1棟。広々と贅沢な空間をとったエントランスホールは大阪経済の歴史を感じるレトロな趣を残した造りになっています。ビジネス街の中心地に位置しながらもコストパフォーマンスが高く非常に経済的な物件です。
- お電話でお問い合わせ(無料)
-
平日13時までのお問い合わせで
当日に物件をご紹介!
お電話の場合「物件番号:A110121」
をお伝えください

