お気に入りを解除しました。
新大阪サンアールビルEAST
物件番号:D101523
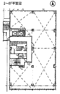
4階138.28坪

- この物件の賃料の価格帯(共益費込)
- 坪@20,001円~@30,000円
| 物件名 | 新大阪サンアールビルEAST 【このビルのその他の募集階】 続きを表示 ▼ |
||
|---|---|---|---|
| 住所 | 大阪府大阪市淀川区西中島5丁目9番2号 新大阪・西中島でよく検索されるその他の物件 |
||
| 構造(規模) | 鉄骨造地上9階建 | ||
| 築年月 | 2026年6月予定 | ||
| 坪数 |
138.28坪 |
||
| 階数 | 4階 | ||
| 保証金 | |||
| 敷金 | 賃料の6カ月分 | ||
| 礼金 | - | ||
| 沿線 最寄駅 |
地下鉄御堂筋線 西中島南方駅 徒歩3分 (西中島南方駅の賃貸事務所) 地下鉄御堂筋線 新大阪駅 徒歩5分 (新大阪駅の賃貸事務所) JR東海道本線 新大阪駅 徒歩5分 (新大阪駅の賃貸事務所) |
||
| アクセス | 新大阪駅まで電車4分 大阪駅梅田駅まで電車7分 関西空港まで電車62分、車50分 伊丹空港まで車20分 高速入口:11号線加島入口 |
||
| EV基数 | 3基 | 人荷EV基数 | - |
| 空調タイプ | 個別 | ||
| 備考 | |||

大通りに面した好アクセス物件。大手オーナー所有で周辺にもグループビルがあり管理体制も抜群です。拡張性、縮小性、両方兼ね備えた利便性高い物件で、現在は短期での賃貸借にも対応。
- お電話でお問い合わせ(無料)
-
平日13時までのお問い合わせで
当日に物件をご紹介!
お電話の場合「物件番号:D101523」
をお伝えください

