お気に入りを解除しました。
テンロクビルヂング
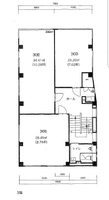
物件番号:C408002
3階7坪

- この物件の賃料の価格帯(共益費込)
- この部屋は成約済みです
| 物件名 | テンロクビルヂング 【このビルのその他の募集階】 |
||
|---|---|---|---|
| 住所 | 大阪府大阪市北区長柄中1丁目7番19号 南森町でよく検索されるその他の物件 |
||
| 構造(規模) | 鉄骨造3階建 | ||
| 築年月 | 2024年12月 | ||
| 坪数 |
7坪 |
||
| 階数 | 3階 | ||
| 保証金 | - | ||
| 敷金 | - | ||
| 礼金 | - | ||
| 沿線 最寄駅 |
地下鉄谷町線 天神橋筋六丁目駅 徒歩4分 (天神橋筋六丁目駅の賃貸事務所) 地下鉄堺筋線 天神橋筋六丁目駅 徒歩4分 (天神橋筋六丁目駅の賃貸事務所) |
||
| アクセス | |||
| EV基数 | - | 人荷EV基数 | - |
| 空調タイプ | 個別 | ||
| 備考 | |||
- お電話でお問い合わせ(無料)
-
平日13時までのお問い合わせで
当日に物件をご紹介!
お電話の場合「物件番号:C408002」
をお伝えください

