お気に入りを解除しました。
淀屋橋PREX
物件番号:A106211
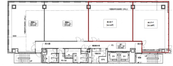
12階50.4坪

- この物件の賃料の価格帯(共益費込)
- この部屋は成約済みです
| 物件名 | 淀屋橋PREX 【このビルのその他の募集階】 |
||
|---|---|---|---|
| 住所 | 大阪府大阪市中央区平野町2丁目4番9号 淀屋橋・北浜でよく検索されるその他の物件 |
||
| 構造(規模) | 鉄骨造地上12階建 | ||
| 築年月 | 2021年9月 | ||
| 坪数 |
50.4坪 |
||
| 階数 | 12階 | ||
| 保証金 | - | ||
| 敷金 | - | ||
| 礼金 | - | ||
| 沿線 最寄駅 |
地下鉄堺筋線 北浜駅 徒歩4分 (北浜駅の賃貸事務所) 地下鉄御堂筋線 淀屋橋駅 徒歩6分 (淀屋橋駅の賃貸事務所) 京阪線(本線・中之島線) 北浜駅 徒歩6分 (北浜駅の賃貸事務所) |
||
| アクセス | 新大阪駅まで電車18分 大阪駅梅田駅まで電車13分 関西空港まで電車59分、車42分 伊丹空港まで車20分 高速入口:阪神高速環状線高麗橋入口 |
||
| EV基数 | 2基 | 人荷EV基数 | - |
| 空調タイプ | 個別 | ||
| 備考 | ・新耐震基準適合 ・LED照明 ・天井高2,700mm ・駐輪場(自動二輪2台) ・リフレッシュスペース(IHコンロ付きパントリー) ・屋上庭園 |
||

地下鉄堺筋線『北浜』駅から徒歩4分、地下鉄御堂筋線『淀屋橋』駅から徒歩6分程に位置するビル。京阪線『北浜』駅からも徒歩6分程と複数路線利用可能です。ワンフロアで120坪程あり、階によって25坪程に分割されています。
- お電話でお問い合わせ(無料)
-
平日13時までのお問い合わせで
当日に物件をご紹介!
お電話の場合「物件番号:A106211」
をお伝えください

