お気に入りを解除しました。
アドーラブル南堀江
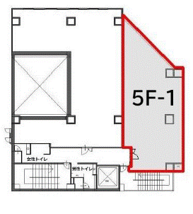
物件番号:B205309
5階32.01坪

- この物件の賃料の価格帯(共益費込)
- 坪@8,001円~@12,000円
| 物件名 | アドーラブル南堀江 【このビルのその他の募集階】 |
||
|---|---|---|---|
| 住所 | 大阪府大阪市西区南堀江3丁目12番17号 四ツ橋・阿波座でよく検索されるその他の物件 |
||
| 構造(規模) | 鉄骨造地上8階建 | ||
| 築年月 | 1989年1月1日 | ||
| 坪数 |
32.01坪 |
||
| 階数 | 5階 | ||
| 保証金 | |||
| 敷金 | 賃料の7カ月分 | ||
| 礼金 | - | ||
| 沿線 最寄駅 |
地下鉄千日前線 西長堀駅 徒歩1分 (西長堀駅の賃貸事務所) 地下鉄長堀鶴見緑地線 西長堀駅 徒歩1分 (西長堀駅の賃貸事務所) 地下鉄長堀鶴見緑地線 西大橋駅 徒歩9分 (西大橋駅の賃貸事務所) |
||
| アクセス | 新大阪駅まで電車23分 大阪駅梅田駅まで電車17分 関西空港まで電車53分、車45分 伊丹空港まで車20分 高速入口:環状線四ツ橋・湊町・西長堀入口 |
||
| EV基数 | 1基 | 人荷EV基数 | - |
| 空調タイプ | 個別 | ||
| 備考 | |||
- お電話でお問い合わせ(無料)
-
平日13時までのお問い合わせで
当日に物件をご紹介!
お電話の場合「物件番号:B205309」
をお伝えください
